4 Bedroom Detached House
£2,850 PCM
Old Woking, Woking

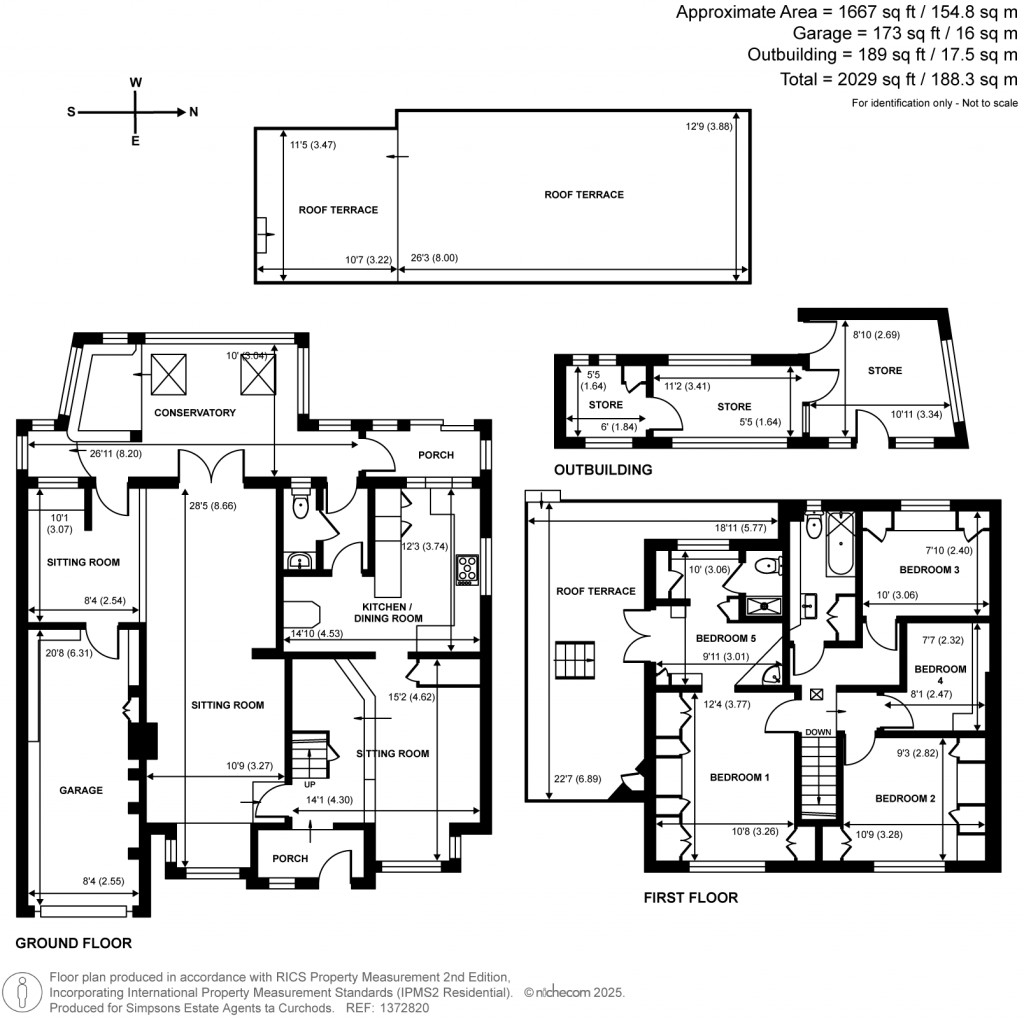
Floorplans For Old Woking, Woking
EPC Graph for Old Woking, Woking}

Description


Key Features

  • Outdoor heated pool
  • Four bedrooms
  • Large driveway
  • Private road
  • Integrated garage
  • Roof terrace
  • Council Tax Band: F
Rarely available is this four bedroom detached family home with an outdoor heated swimming pool located on one of Woking's private roads. The property is due to be repainted and will have a pool cover installed. Additional benefits include an integrated garage and a two-tier roof terrace offering fantastic views of the local area.
Curchods

Curchods

Bridge House
Woking
Surrey
GU21 6JT

+44 (0)1483776644

Reference: CHD252361

Request a viewing for this property

Simply fill out the form below or alternatively call us on 020 7839 0888

* Mandatory fields