5 Bedroom Detached House
£2,000,000
Broadwater Rise, Guildford, Surrey

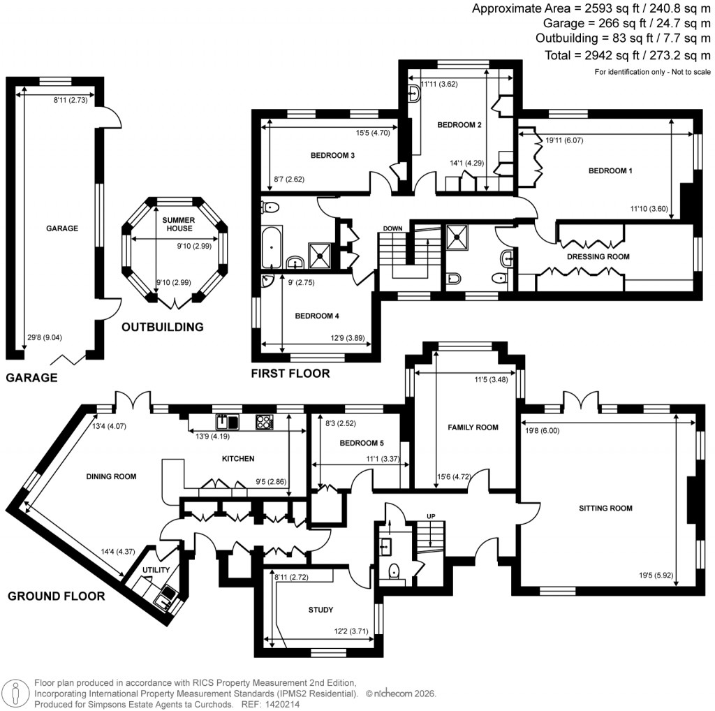
Floorplans For Broadwater Rise, Guildford, Surrey
EPC Graph for Broadwater Rise, Guildford, Surrey}

Description


Approached via a sweeping in-and-out driveway, the house enjoys a grand sense of arrival. The driveway is framed by mature hedging and established planting, offering both privacy and kerb appeal. A covered porch provides shelter at the entrance, where a substantial solid wood front door opens into a welcoming and spacious hallway.
The hallway immediately sets the tone for the accommodation, offering ample built-in storage and access to a convenient ground floor W/C. To the right, a magnificent triple-aspect sitting room is bathed in natural light, with windows to three sides creating a bright and airy atmosphere. A striking marble-surround fireplace serves as a focal point, adding warmth and elegance to this superb reception space.
The family room, featuring a charming bay window, provides an additional comfortable retreat. A versatile fifth bedroom on the ground floor offers flexibility for guests, multigenerational living, or a home office.
At the heart of the home lies the contemporary open-plan kitchen, thoughtfully designed with granite worktops and a range of integrated appliances. The kitchen flows seamlessly into the dining area with doors opening directly onto the beautiful rear garden. A convenient utility room is positioned just off the dining room, providing additional storage and laundry facilities.
The first floor continues to impress. The extensive principal bedroom boasts a dressing room featuring built-in storage and a spacious en suite shower room. Three further well-proportioned double bedrooms rooms are served by a large family bathroom, fitted with both a bath and a separate shower.
Externally, the property truly excels. The exceptionally private, south-facing rear garden is landscaped with mature hedging, established trees, and thoughtfully planted borders. A large patio area, enclosed by a pretty wall, creates the perfect setting for al fresco dining. A charming summer house adds further versatility, ideal as a garden studio, home office, or peaceful retreat.
In addition, the property benefits from a double-length garage, providing ample parking and storage space.
Given its enviable south-facing orientation, generous garden size, and prime position along the road, this is arguably one of the finest plots available.
Curchods

Curchods

4 London Road
Guildford
Surrey
GU1 2AF

+44 (0)1483 458800

Reference: CGD260053

Request a viewing for this property

Simply fill out the form below or alternatively call us on 020 7839 0888

* Mandatory fields