3 Bedroom Terraced House
£535,000
Addison Road, Guildford, Surrey

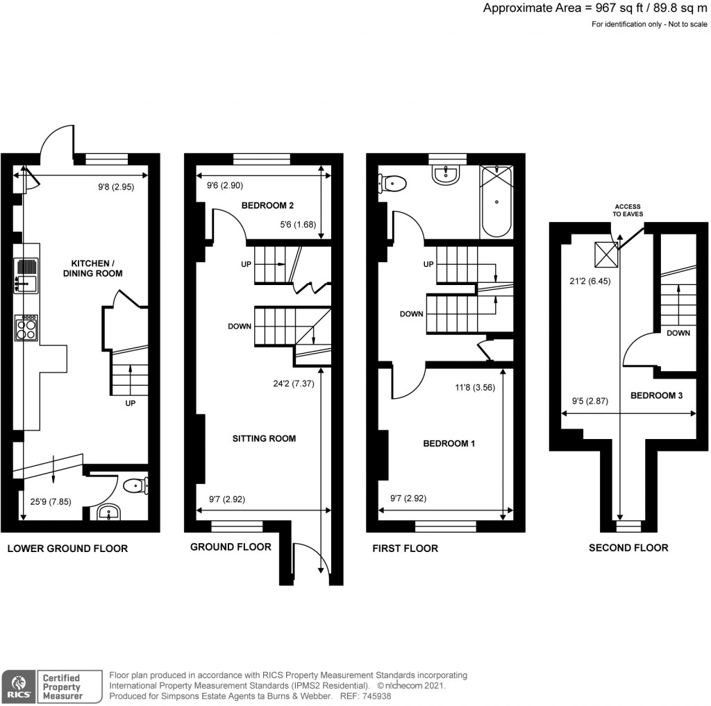
Floorplans For Addison Road, Guildford, Surrey
EPC Graph for Addison Road, Guildford, Surrey}

Description


Key Features

  • Attractive Victorian mid-terrace home in the heart of Charlotteville
  • Prime position between Guildford High Street and the Downs
  • Bright, open-plan living spaces ideal for modern lifestyles
  • W/C on the lower ground floor
  • Period character blended with practical, contemporary layout
  • Rear garden offering low-maintenance outdoor space
  • Neatly presented and well cared for throughout
  • Perfectly placed for town amenities, scenic walks and transport links.
  • Council Tax Band: E
  • Tenure: Freehold
A charming Victorian three-bedroom mid-terrace home, set in the highly sought-after conservation area of Charlotteville part of Guildford town centre. Wonderfully positioned between the High Street and the Downs, the property offers the perfect blend of town centre convenience and picturesque countryside. The accommodation features an open-plan layout that complements the home’s period character, creating a bright and spacious feel throughout. Upstairs, there are three well-proportioned bedrooms. Outside, the garden is a generous size, low-maintenance and beautifully maintained.
Curchods

Curchods

4 London Road
Guildford
Surrey
GU1 2AF

+44 (0)1483 458800

Reference: CGD250417

Request a viewing for this property

Simply fill out the form below or alternatively call us on 020 7839 0888

* Mandatory fields