3 Bedroom Semi Detached House
£150,000
Lowick, Berwick-upon-Tweed, Northumberland

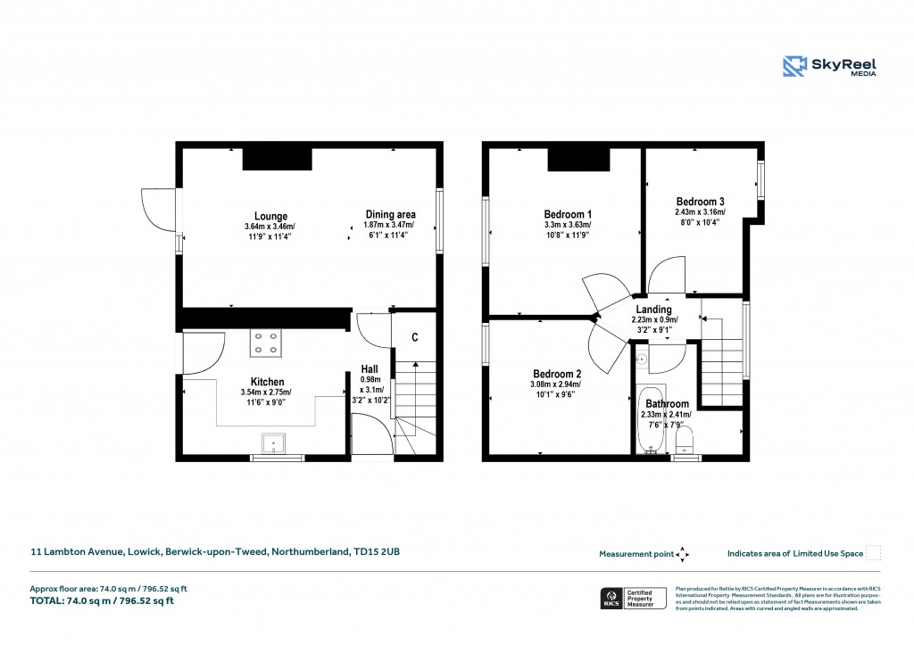
Floorplans For Lowick, Berwick-upon-Tweed, Northumberland
EPC Graph for Lowick, Berwick-upon-Tweed, Northumberland}

Description


Located on the outskirts of the popular Northumberland village of Lowick, with superb open views to the rear of farmland and the sea beyond, this spacious three bedroom semi-detached house would make an ideal family house, which has double glazing and oil central heating. The well-proportioned interior comprises a spacious dual aspect living room/dining area, with French doors to the rear garden and a well equipped kitchen. On the first floor there is a modern white bathroom with a shower over the bath and three generous bedrooms, the two larger bedrooms have stunning open views. Parking on a driveway at the front of the house for two cars and a large enclosed rear lawn garden with a timber shed. Accommodation comprises: Ground Floor: Entrance Hall, Lounge/Dining Area & Kitchen. First Floor: Landing, Bedroom 1, Bedroom 2, Bedroom 3, Family Bathroom. Outside: Private Driveway, Rear Garden. Distances: Wooler 8 miles, Berwick-upon-Tweed 10 miles, Edinburgh 62 miles, Newcastle 53 miles. Tenure: Freehold EPC: Band D (62) Council Tax Band: A What3words: young.paddlers.captions

Reference: CET251054

Request a viewing for this property

Simply fill out the form below or alternatively call us on 020 7839 0888

* Mandatory fields