1 Bedroom Upper Floor Flat
£149,000
Yorkhill, Glasgow

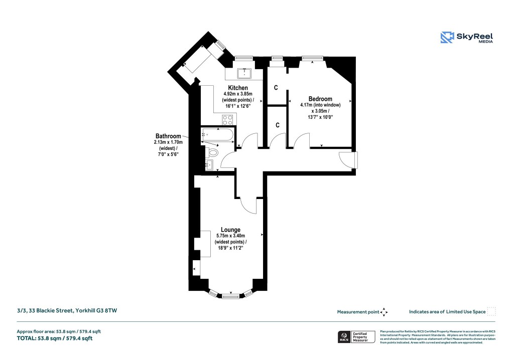
Floorplans For Yorkhill, Glasgow
EPC Graph for Yorkhill, Glasgow}

Description


CLOSING DATE THURSDAY 20 TH NOVENMBER AT 11 AM. Occupying a prominent third-floor position within a handsome sandstone tenement building, this immaculately presented one-bedroom apartment offers bright, spacious and well-proportioned accommodation presented in walk in condition throughout. Combining period character with modern convenience, this charming home will appeal to a wide range of purchasers including first-time buyers, professionals, and investors alike. The accommodation includes a superb bay-windowed lounge, a separate dining kitchen, a spacious double bedroom and a stylish three-piece bathroom. Additional features include natural wooden finishes including wooden flooring in the reception hall, lounge and kitchen, a focal point fireplace in the lounge and useful storage off the reception hall and bedroom. 33 Blackie Street enjoys a particularly convenient West End setting close to an enviable selection of amenities. Nearby, Argyle Street and Sauchiehall Street offer a great choice of shops, cafés, and restaurants. The property is ideally positioned for access to Glasgow City Centre, the West End, and major transport links, including Kinning Park Subway Station and the M8 motorway, ensuring quick connections across the city and beyond. In addition, Kelvingrove Park and The University of Glasgow are both in easy reach. Accommodation: • Security entry system • Communal entrance close • Welcoming reception hall with useful storage cupboard off • Superb lounge with three section bay window, wooden flooring, shelved press, focal point fireplace and recess area • Dining kitchen complete with a range of base and wall units, wooden flooring and two windows to the rear • Generous double bedroom with window to the rear and invaluable storage cupboard off • Stylish three-piece bathroom comprising bath, over bath shower, toilet and wash hand basin • Gas central heating • Double glazing • Shared courtyard to the rear of the building • Availability of on street residents’ parking permit Freehold EPC D Council Tax Band C

Reference: CET250966

Request a viewing for this property

Simply fill out the form below or alternatively call us on 020 7839 0888

* Mandatory fields