5 Bedroom Detached House
£945,000
Edinburgh

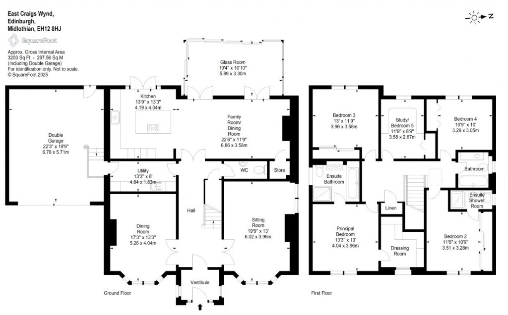
Floorplans For Edinburgh
EPC Graph for Edinburgh}

Description


61 East Craigs Wynd is a bright and welcoming home, perfectly positioned in one of Edinburgh’s most family-friendly neighbourhoods. Tucked away in a peaceful setting, this property offers the ideal blend of space, comfort and convenience, designed with modern family living in mind. The accommodation includes a generous lounge filled with natural light, creating an inviting space for relaxing or entertaining. The contemporary kitchen and dining area form the heart of the home, with excellent storage and worktop space, making family mealtimes a pleasure. The well-proportioned bedrooms provide a calm retreat, with the principal bedroom benefiting from fitted storage, while the stylish family bathroom completes the interior. Outside, a private garden offers the perfect space for children to play or for hosting summer gatherings. A real highlight of the home is the beautiful glass room, a wonderful all-year-round space with a desirable west-facing aspect, perfect for enjoying afternoon sun and watching the day draw to a close. East Craigs is renowned for its strong community feel, excellent local schools and plentiful green spaces, making it a highly desirable choice for families. The location is also ideal for commuters, with swift access to the City Bypass, M8 and M9 motorways, ensuring an easy journey to Glasgow and beyond. Edinburgh Airport is just a short drive away, while public transport links provide quick and convenient access into the city centre. With nearby parks, cycle paths and leisure facilities, as well as The Gyle Shopping Centre just moments away, 61 East Craigs Wynd combines a practical location with a wonderful quality of life. EPC Rating: B Council Tax Band: G Tenure: Freehold Viewing by appointment only.

Reference: CET250960

Request a viewing for this property

Simply fill out the form below or alternatively call us on 020 7839 0888

* Mandatory fields