3 Bedroom Duplex Flat
£295,000
Woodlands, Glasgow

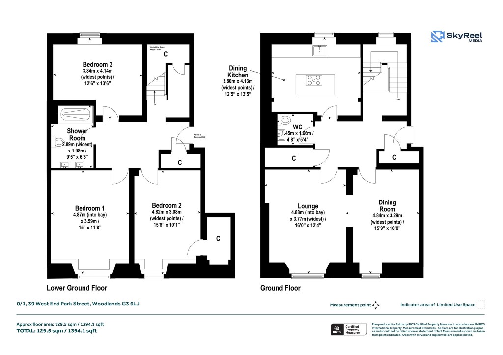
Floorplans For Woodlands, Glasgow
EPC Graph for Woodlands, Glasgow}

Description


Conveniently location within the highly popular Woodlands district, this beautifully presented three-bedroom duplex offers spacious, flexible accommodation over two levels, combining period charm with modern convenience in one of Glasgow’s most desirable locations. Occupying the ground and lower ground floors of a traditional sandstone tenement building, the property offers a thoughtfully laid out interior that is comfortably proportioned, immaculately presented throughout and benefits from excellent natural light. The ground level accommodation includes a bright and spacious main lounge, a separate dining room, a modern kitchen with central island and breakfasting bar. In addition, there is a two-piece WC and two useful storage cupboards off the reception hall. The lower ground level includes three spacious and adaptable double bedrooms, each. A stylish and contemporary four-piece shower room serves the lower level. Set within the ever-popular Woodlands area, 39 West End Park Street enjoys easy access to an enviable selection of local amenities. Just moments from Kelvingrove Park, Kelvingrove Art Gallery & Museum, and Glasgow University, the area is rich in culture and green space. The vibrant Byres Road and Finnieston areas are within walking distance, offering a wide selection of cafés, restaurants, bars, and boutique shops. Public transport links are excellent, with Charing Cross and Kelvinbridge subway stations nearby, as well as multiple bus routes and easy access to the M8 motorway network, making commuting throughout the city and beyond both quick and convenient. Accommodation: • Security entry system • Communal entrance close • Welcoming reception hall with two useful storage cupboards off and staircase to lower ground level • Superb main lounge with two section window to the front • Versatile dining room with window to the front • Impressive kitchen complete with a range of base and wall units, integrated appliances, central island with breakfasting bar and window to the rear • Stylish two-piece WC off the reception hall • Lower ground hall with storage cupboard off • Bedroom one with two section window to the front • Bedroom two with window to the front and storage cupboard off • Bedroom three with window to the rear • Contemporary four-piece shower room • Gas central heating • Shared garden to the rear of the building • Availability of on street residents’ parking permit

Reference: CET250879

Request a viewing for this property

Simply fill out the form below or alternatively call us on 020 7839 0888

* Mandatory fields