3 Bedroom Duplex Flat
£1,850 PCM
Edinburgh, Midlothian

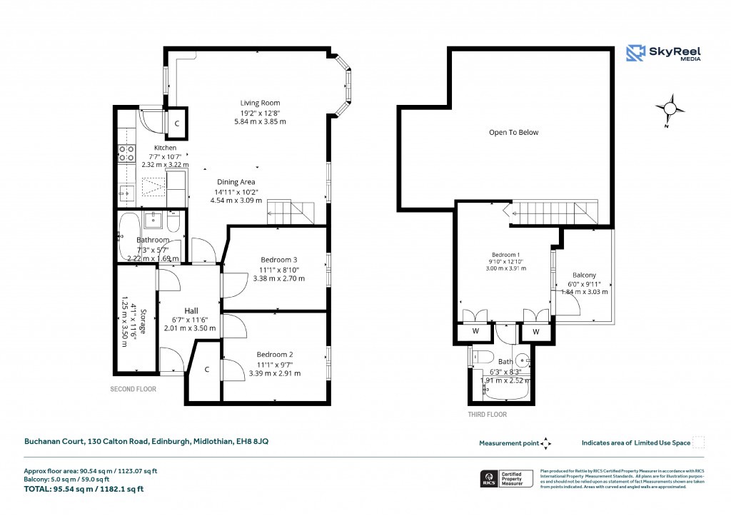
Floorplans For Edinburgh, Midlothian
EPC Graph for Edinburgh, Midlothian}

Description


Stylish three-bedroom (non-HMO) duplex apartment with balcony and allocated parking, tucked away in a peaceful courtyard just off Calton Road, in the very heart of Edinburgh’s historic Old Town. Set over the second and third floors of the building, the property combines light, space, and style in a desirable central setting, creating a lovely balance of modern comfort with urban convenience. Accommodation Comprises: Welcoming entrance hall with large storage cupboard; Open-plan living and dining area forming the heart of the home, with adjoining fitted kitchen with ample worktop space and integrated appliances; Two well-proportioned double bedrooms; Family bathroom with shower over the bath; Stairs leading directly to the principal bedroom suite on the upper level, with fitted wardrobes, a stylish en-suite bathroom, and access to a private south-facing balcony. The property further benefits from gas central heating, double glazing, an allocated parking space in the secure car park and bike racks. Buchanan Court occupies a quiet yet highly convenient position just off Calton Road, moments from Holyrood Palace, Calton Hill, and the Royal Mile. The development provides a peaceful residential atmosphere while remaining within easy reach of Edinburgh’s finest shops, restaurants, and cultural attractions. St James Quarter, Princes Street, and the Royal Mile are all within walking distance, offering an excellent choice of designer boutiques, independent stores, cafés, and fine dining. For leisure and recreation, Holyrood Park and Calton Hill provide beautiful outdoor spaces for walking and exercise, while the recently redeveloped Meadowbank Sports Centre offers extensive gym, track, and court facilities close by. Edinburgh Waverley Station is only a five-minute walk from the property, providing easy access across Scotland and beyond. Frequent local bus services connect the area with other parts of the city, and tram links and major routes such as the A1 and City Bypass are also readily accessible. Families are well served by local schools, with Abbeyhill Primary School and Drummond Community High School within the catchment area. Several of Edinburgh’s highly regarded independent schools, including George Heriot’s and The Edinburgh Academy, are also easily reached. The University of Edinburgh’s central campus is close by. Please note that the fire pictured in the photographs is feature only and is not operational. The property also does not have an HMO license, so is not suitable for three unrelated sharers. Furnished Deposit: £2,050 Council Tax Band: E EPC Rating: C Landlord Registration: 1604848/230/16062 LARN1903047

Reference: CET250821

Request a viewing for this property

Simply fill out the form below or alternatively call us on 020 7839 0888

* Mandatory fields