3 Bedroom Upper Floor Flat
£309,000
Partickhill, Glasgow

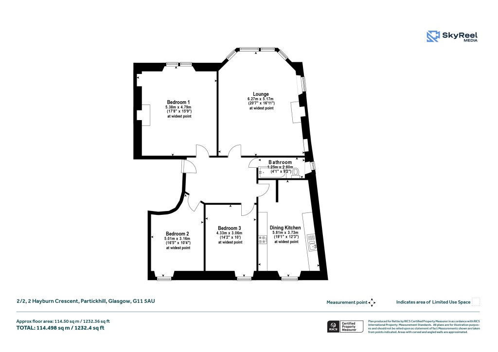
Floorplans For Partickhill, Glasgow
EPC Graph for Partickhill, Glasgow}

Description


CLOSING DATE MONDAY 22ND DECEMBER AT 2PM This is an absolutely outstanding three bedroom second floor (top) apartment showcasing breathtaking natural views across the tree lined curved frontage of Hayburn Crescent. The crescent was predominantly designed by John Cunningham and constructed around 1875, with the property for sale presenting an exciting and rare opportunity to acquire spacious four apartment accommodation in the coveted Partickhill area. Having crossed the threshold, the home makes an instantaneous impression in terms of space and brightness. The interiors are generous and finished to an exacting standard in a modern, understated style that compliments the grand period proportions and evokes a calming sense of serenity. The magnificent front lounge is undoubtedly the heart of the home, with its triple-section bay window and auxiliary side sash and case window, enhancing the space while preserving period charm. These windows bathe the room in constant natural light and frame sweeping, elevated views across the graceful curve of Hayburn Crescent and towards the open expanse of Dyce Park. Hayburn Crescent is renowned for perfectly balancing the serene surroundings of Partickhill with an exceptionally convenient situation, being just a short stroll in either direction from a collection of the most prominent amenities the West End has to offer. Reputable schools are on hand, with Hyndland Secondary School at the top of the hill, and leading independent schools in the local vicinity. Excellent transport links are available with Hyndland Train Station and Partick over and underground connecting the area with the wider city and beyond, ensuring this is an outstanding West End location for families and professionals alike. Accommodation • Secure communal close. • Inviting entrance hallway with hardwood flooring. • Impressive front lounge with a magnificent triple-section bay window to the front, further illuminated by a secondary sash and case side window, and centred around a focal-point fireplace with hardwood flooring. The room basks the space natural light and boasts views gorgeous natural views from the bay, together with a delightful leafy dual aspect towards Dyce Park to the south. • Lovely dining kitchen with fitted cabinetry, window to the rear and a dining recess with storage area above. • Vast principal (main) bedroom with two section sash and case window to the front, immaculately preserved original cornice and centre rose, anchored by a broad focal point Carrara marble fireplace. • Bedroom two is carpeted with single window to the rear. • Bedroom three is also well decorated, with a feature “curved” wall section. • Bathroom with shower over bath and window to the side. • Communal garden. • Availability of on street resident’s parking. Please note that virtual staging has been used in the livingroom imagery. EPC: D Council Tax: D Tenure: Freehold

Reference: CET250707

Request a viewing for this property

Simply fill out the form below or alternatively call us on 020 7839 0888

* Mandatory fields