1 Bedroom Upper Floor Flat
£165,000
Merchant City, Glasgow City

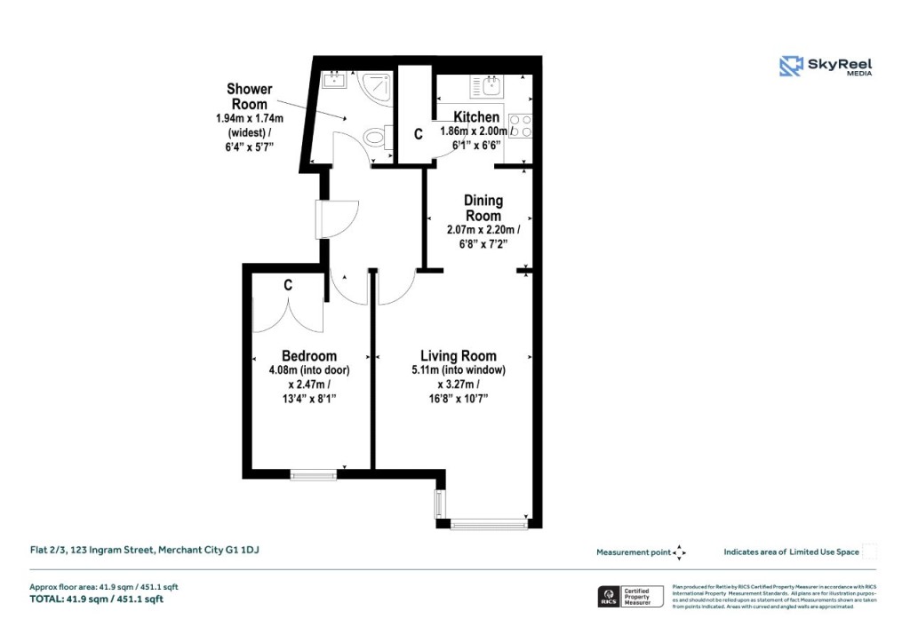
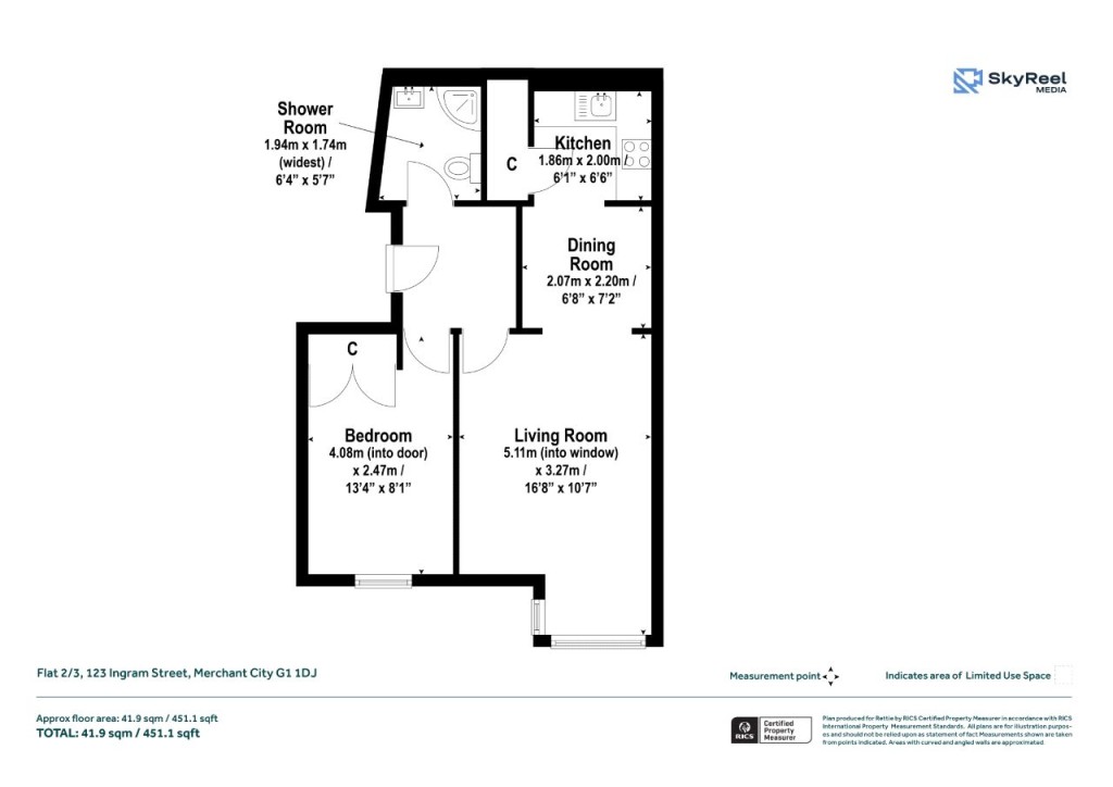
Floorplans For Merchant City, Glasgow City
EPC Graph for Merchant City, Glasgow City}

Description


This modernised one-bedroom apartment occupies a second-floor position within a landmark ‘B’ listed sandstone building originally designed by Robert Billings and built in a Baronial style in 1854 as a department store the building was converted to residential apartments in the 1980’s and benefit from lovely residents enclosed courtyard gardens to the rear and access to Glasgow City Council’s Residents Parking Permit. The property is situated on Ingram Street and is exceptionally well placed to take advantage of an enviable selection of local amenities including excellent bars and restaurants, every day and leisure shopping and excellent transport links and recently set up with access to Hyperoptic Full Fibre Broadband. Accessed via secure entry to communal stair, the entrance hallway has recently been redecorated and is freshly presented with new carpets. The interior is well presented and is of comfortable proportions with notable highlights including a living/dining/kitchen spanning almost 30 ft into the window alcove and features re-fitted kitchen with integrated appliances and store cupboard, double bedroom with fitted wardrobes and a stylish re-fitted shower room. In addition, there is excellent natural light provided by the tall windows in the living room/dining room. The property has double glazing with views over the courtyard away from street noise and electric heating. Situation: This stylish apartment is situated in the heart of the Merchant Centre where there is an outstanding selection of shops nearby on Buchanan Street and Argyle Street together with a wonderful choice of restaurants and bars. Transport links are on the doorstep via bus and by rail at both Queen St Station and Glasgow Central Station are within a few minutes’ walk. There are a number of local hospitals nearby and the property is also well placed for road links including the M8 motorway network Travel Directions: On foot from George Square head south onto South Frederick Street towards Ingram Street. At the traffic lights turn left onto Ingram Street and head east towards the junction with Montrose Street where you will find the entrance to No.123 is along on the right-hand side opposite Tinderbox Café.

Reference: CET240785

Request a viewing for this property

Simply fill out the form below or alternatively call us on 020 7839 0888

* Mandatory fields