4 Bedroom Detached House
£540,000
Innerleithen, Scottish Borders

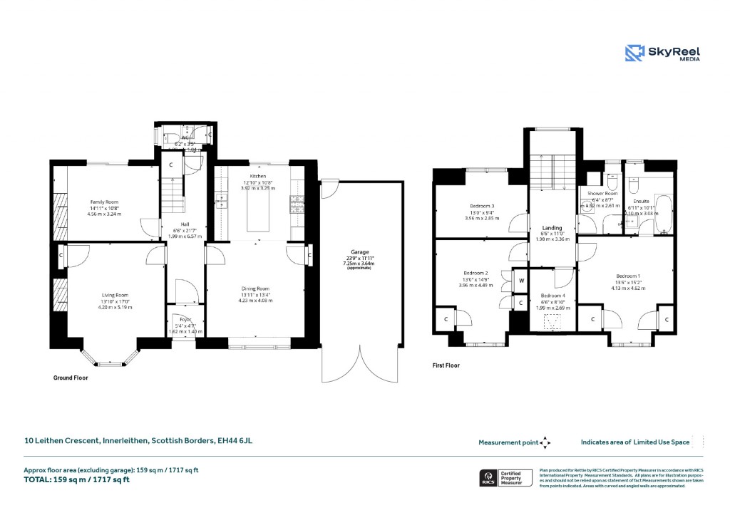
Floorplans For Innerleithen, Scottish Borders
EPC Graph for Innerleithen, Scottish Borders}

Description


No.10 Leithen Crescent is a charming Victorian manse set within a peaceful and generous sized plot in the sought after town of Innerleithen set in the stunning Tweed Valley. The property boasts four bedrooms and three reception rooms offering flexible space for family living over two principal floors. Highlights include: • Generous sitting room with ornate carved wooden fireplace, deep bay window, wood-burning stove and ornate cornicing. • Open plan kitchen/dining room with picture window, modern country-style kitchen and original wooden floorboards. • Cosy snug/family room which doubles as a useful home office, the room further benefits from a wood-burning stove and french doors to the garden. • Refurbished windows replaced with double glazed timber sash and case units in the sitting room, kitchen, principal bedroom and second bedroom. • Principal bedroom with large en-suite bathroom boasting shower over bathtub and white three-piece suite. • Three further bedrooms (two doubles and one single) and additional shower room. • Useful downstairs WC with back door and cloakroom. • Generous, mature enclosed wraparound gardens offering privacy and ample opportunity to enjoy the sunshine. • Large outhouse ideal for storage/external home office/home gym. • Ample off-street parking for several vehicles and EV Charging facility installed. 10 Leithen Crescent is an utterly charming home, rich in key period features whilst also enjoying sensitive modern upgrades to the windows and bathrooms. Its peaceful location is only a short distance from the bustling high-street which boasts an array of independent retailers, coffee shops, restaurants, and local schooling is a short walk from the property. Innerleithen is well connected being only 7-miles East of Peebles and the Edinburgh City Bypass is a mere 22-mile drive. The A72 serves as an easy connection to the wider central Scottish Borders. There are regular bus routes to the Borders and Edinburgh via the X62 service. EPC Rating - D Council Tax - E Tenure - Freehold Viewings by appointment via Rettie Borders.

Reference: CET240682

Request a viewing for this property

Simply fill out the form below or alternatively call us on 020 7839 0888

* Mandatory fields