2 Bedroom First Floor Flat
£650,000
Claremont Lane, Esher, Surrey

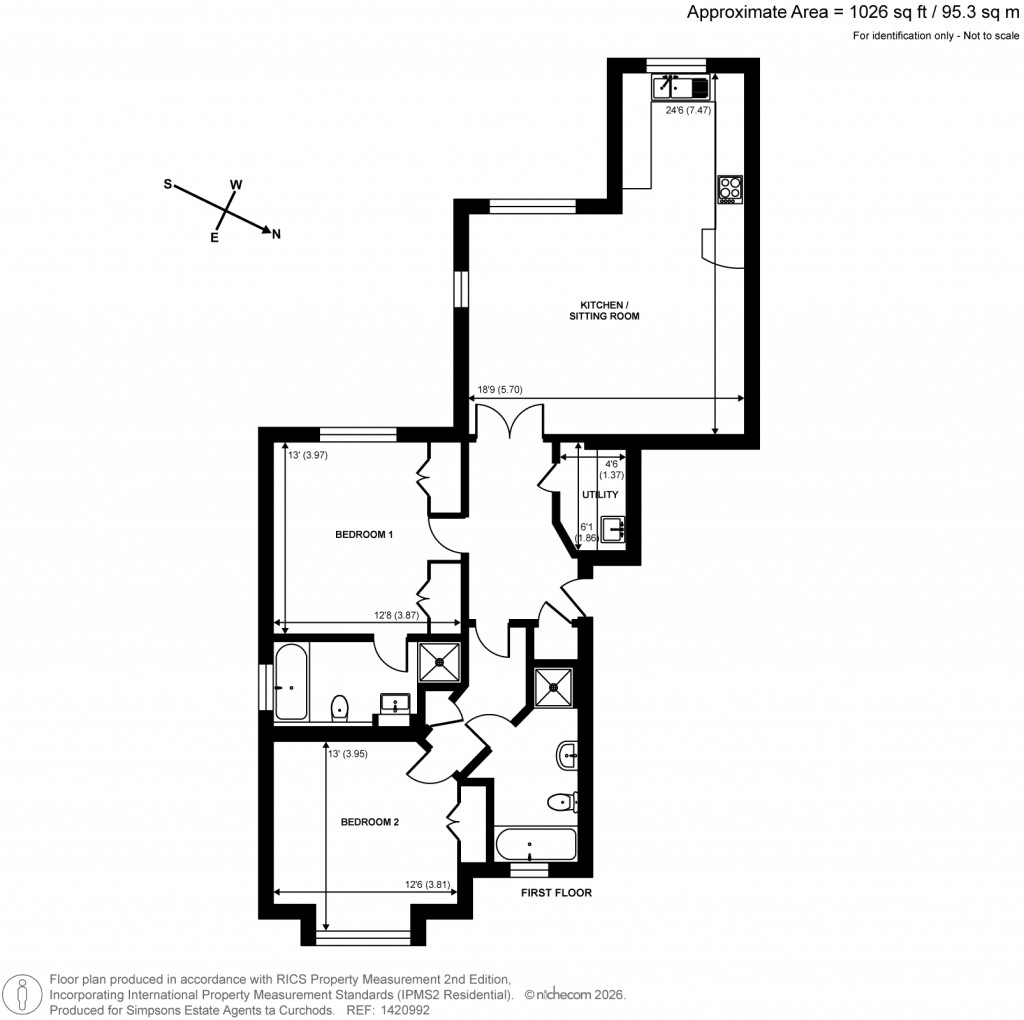
Floorplans For Claremont Lane, Esher, Surrey
EPC Graph for Claremont Lane, Esher, Surrey}

Description


Key Features

  • Gated development in central Esher
  • Over 1,000 sq ft internal space
  • First floor with concrete soundproof flooring
  • South-west facing communal gardens
  • Secure gated underground parking
  • Spacious open-plan kitchen and living area
  • Share of freehold ownership
  • No onward chain for smooth purchase
  • 125 Year Lease commenced 1.1.2006
  • Council Tax Band: F
  • Tenure: Share of Freehold
The property features a spacious open-plan kitchen, dining and living area, providing a versatile space for everyday living. The kitchen is fully fitted with integrated appliances and ample storage, while large windows allow for good natural light and outlook over the south-west facing communal gardens.

There is a generous entrance hall with useful storage and a separate utility room.

The principal bedroom includes built-in wardrobes and an en-suite bathroom with both a bath and separate shower. The second double bedroom also benefits from built-in wardrobes and is served by a separate family bathroom, again fitted with both bath and shower.

Additional features include concrete flooring for enhanced sound insulation, gated underground parking, landscaped communal gardens, share of freehold, and no onward chain.

A well-located and spacious apartment, ideally positioned for local amenities and transport links.
Curchods

Curchods

77 High Street
Esher
Surrey
KT10 9QA

+44 (0)1372 462000

Reference: CER260085

Request a viewing for this property

Simply fill out the form below or alternatively call us on 020 7839 0888

* Mandatory fields