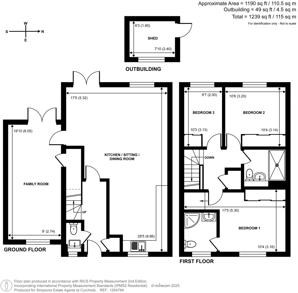
The ground floor features a spacious open-plan kitchen/dining/family room, perfect for entertaining or everyday living, complemented by a separate reception room—ideal as a study or playroom. Upstairs, the principal bedroom benefits from a stylish en-suite shower room, while two further bedrooms share a contemporary family bathroom.
Conveniently situated within walking distance of Clatgate shops and station, and within the catchment area of highly sought-after local schools, this home offers both lifestyle and location in equal measure.