3 Bedroom Detached House
£850,000
Portsmouth Road, Cobham, Surrey

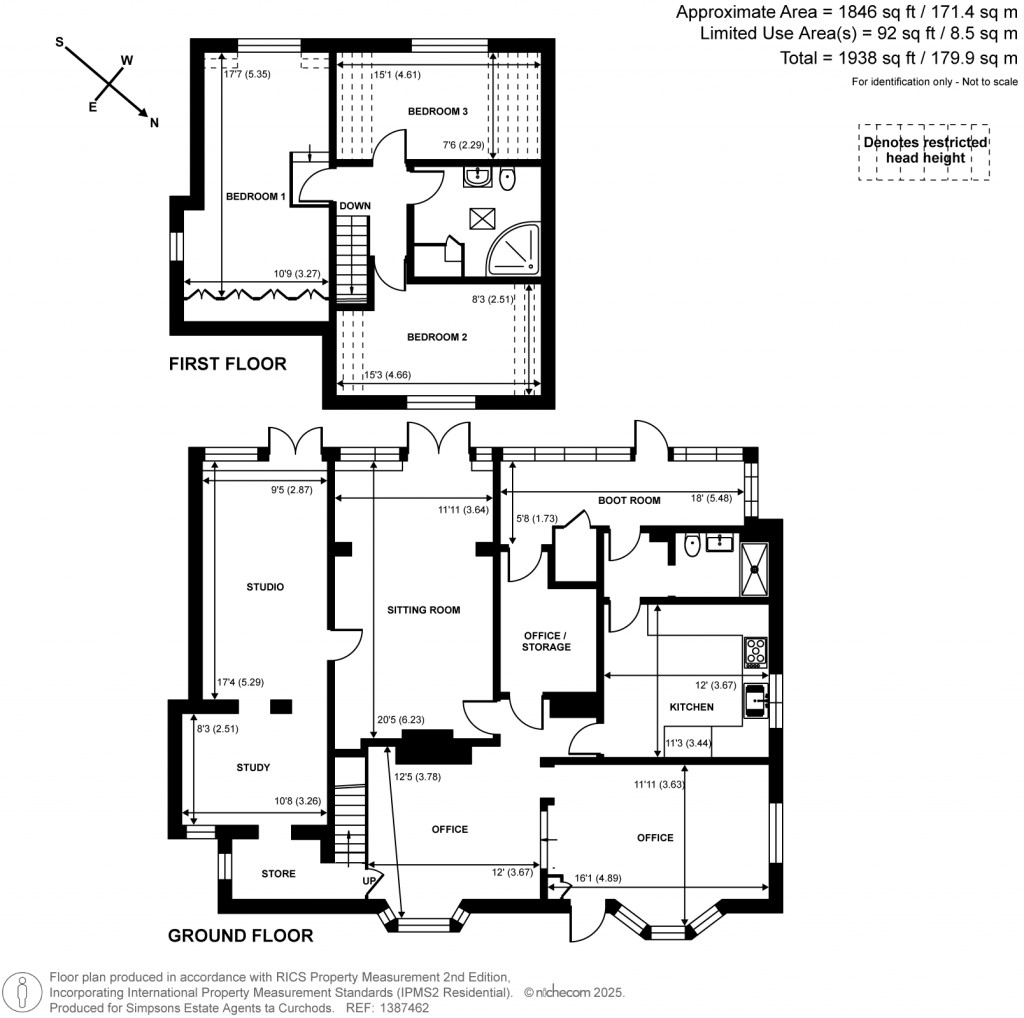
Floorplans For Portsmouth Road, Cobham, Surrey
EPC Graph for Portsmouth Road, Cobham, Surrey}

Description


Key Features

  • Rarely available commercial unit with residential accommodation
  • Highly advantageous location for passing trade
  • Site comprises of a 2-storey freehold, mixed use detached building
  • Offering just shy of 2,000 square feet
  • Opportunity to convert to residential (STPP)
  • Car park to the rear for 4 vehicles via a shared driveway
  • 0.5 miles from the centre of Cobham
  • Recently re-fitted kitchen and ground floor shower room
  • Council Tax Band: C
  • Tenure: Freehold
An excellent and unique opportunity to purchase a commercial/retail property with living accommodation, on the main route between Cobham and Esher. For the past 35 years, the premises have been occupied by a very successful Graphics / IT Web Design business, which has greatly benefited from passing trade, reducing the need to advertise. The property has retail / light industrial usage and has a car park to the rear accessed by a shared driveway. The building is an attractive period cottage which is mentioned in the Cobham History Book, offering generous living accommodation in addition.
Curchods

Curchods

40 St James's Place
Cobham
Surrey
KT11 3DQ

+44 (0)1932 860999

Reference: CCM260032

Request a viewing for this property

Simply fill out the form below or alternatively call us on 020 7839 0888

* Mandatory fields