3 Bedroom Detached House
£850,000
Portsmouth Road, Cobham, Surrey

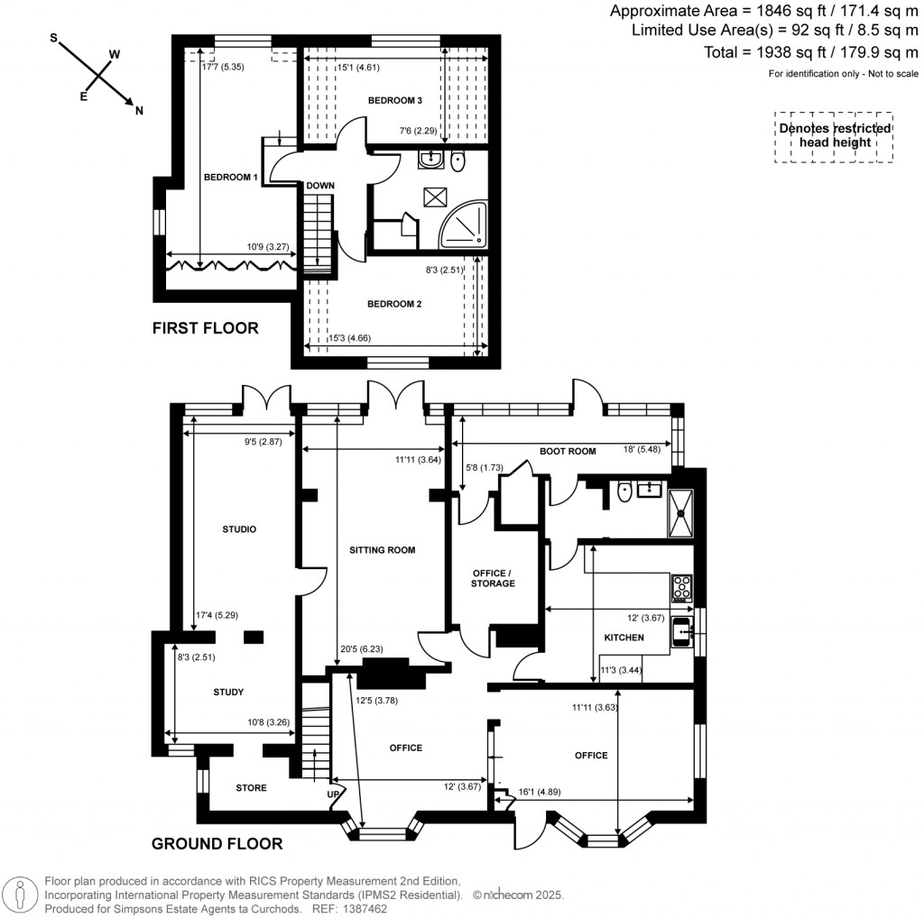
Floorplans For Portsmouth Road, Cobham, Surrey
EPC Graph for Portsmouth Road, Cobham, Surrey}

Description


Key Features

  • Rarely available commercial/residential unit
  • Site comprises of a 2-storey freehold, mixed use detached building
  • Offering just shy of 2,000 square feet
  • Opportunity to convert to residential (STPP)
  • Car park to the rear for 4 vehicles via a shared driveway
  • 0.5 miles from the centre of Cobham
  • Recently re-fitted kitchen and ground floor shower room
  • No onward chain
  • Council Tax Band: C
  • Tenure: Freehold
A unique opportunity to purchase a mixed-use office/retail and residential unit situated in a prominent position on a main thoroughfare, only half a mile from the centre of Cobham. Inn House has been home to a local Design & Print Company for many years and offers flexible usage as a business premises, part or full residential (subject to planning). There is off-street parking at the rear via a shared driveway.
Curchods

Curchods

40 St James's Place
Cobham
Surrey
KT11 3DQ

+44 (0)1932 860999

Reference: CCM250228

Request a viewing for this property

Simply fill out the form below or alternatively call us on 020 7839 0888

* Mandatory fields