4 Bedroom Detached House
£1,650,000
Mayland, Essex

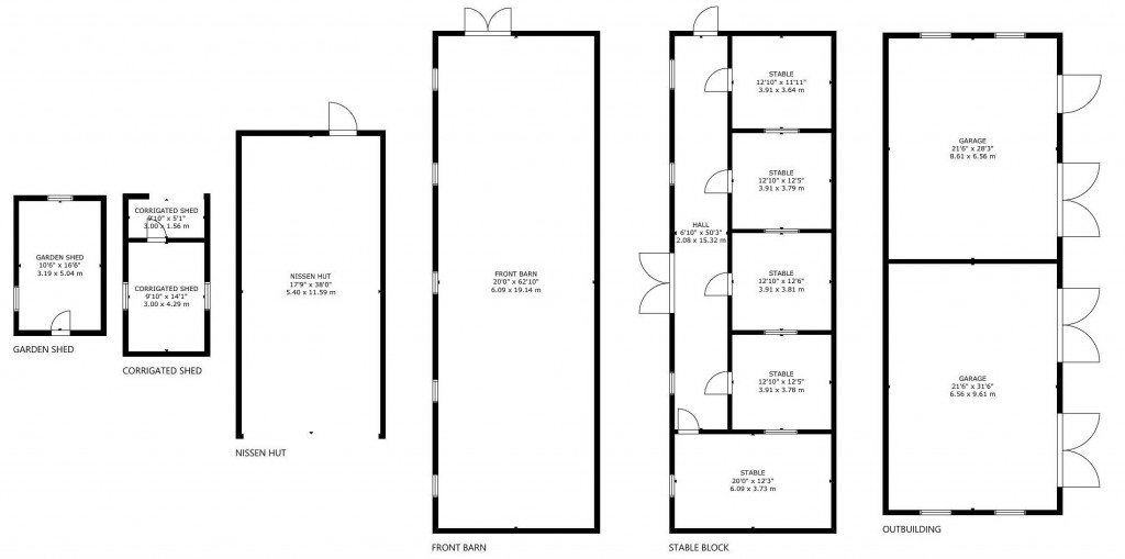
Floorplans For Mayland, Essex Floorplans For Mayland, Essex
EPC Graph for Mayland, Essex}

Description


Key Features

  • Spacious detached property 3,400sq.ft.
  • Plot of approx. 7.5 acres
  • 4 double bedrooms, principal en-suite
  • Large games room & changing room/shower
  • Substantial garaging, Annex potential (STPP)
  • Stable block (5 stables) and further large Barn
  • Menage and fenced paddocks
  • Outdoor swimming pool area
  • Rail services nearby at Althorne
  • Council Tax Band: G
  • Tenure: Freehold
Approached by a long private driveway (approx. 300 yards) from an electric gated entrance, this detached residence is set on a plot of approx. 7.5 acres offering a 4 double bedroom residence, large 3/4 car garage (potential for conversion to Annex STPP), large games/snooker room and a heated outdoor swimming pool. The closes railway station is Althorne.

The imposing detached property sits centrally on the plot – to the ground floor the entrance hall leads into two spacious dual aspect reception rooms both offering double doors out to the covered patio. The kitchen/breakfast room offers dining space, a walk-in pantry and a range cooker – adjacent is a good sized utility room/boot room. The study offers further double doors to outside and there is a shower room/wc (a further wc is accessed from outside). A connecting hallway, from the kitchen area with double doors leading to the outside, gives access to a reception/playroom. Beyond is the 24ft. dual aspect Games Room ideal for entertaining with windows either side and a set of patio doors, off which is a changing room which has sliding doors leading to the swimming pool, shower and wc. This area lends itself to be used as a separate Annex if required. From the central hallway stairs lead up to the first floor offering a principal bedroom with en-suite shower/wc and built-in wardrobes. There are three further double bedrooms, a store room and a family bathroom with corner bath and separate shower.

Outside the driveway passes grassed areas, an enclosed vegetable garden with greenhouse, a natural pond and a parking area with a garaging block offering three large garages with double doors, storage at one end and hardstanding for a horse box. The garaging offers potential as an Annex (STPP). There is a separate fenced area which includes a large Barn (62ft. x 20ft), a stable block offering five stables, a fenced yard area and a nissen hut. Gardens surround the main house with lawned areas, mature trees and shrubs. Adjacent to the house, with access to the changing room, is the enclosed outdoor swimming pool with paved surround and pool cover (heated by a Air Source Heat Pump during the Summer months). There are fenced areas for small animals and beyond, is a 40m x 20m Menage. The remainder of the land to the rear is currently grazing paddocks and there is a scattering of smaller outbuildings/sheds on the plot. The plot equates to approx. 7.5 acres. The property lies on the outskirts of Southminster with the village offering shops, community facilities, the Wibblers Brewery and of course, the station offering good services to London. The River Blackwater is close by with Burnham on Crouch just 4 miles away and excellent Grammar Schools at Chelmsford. Property Information: Tenure Freehold, private drainage, oil heating (two boilers). Ref: CAV210060.

RAIL SERVICES WITHIN EASY REACH (London Liverpool Street approx. 50-70 minutes) | Burnham-on-Crouch 4 miles approx.
Maldon Town Centre 9 miles approx. | Chelmsford City Centre 17 miles approx. | Blackwater Marina 3.5 miles approx. | Excellent road links A130 & A414 (A12/A127 - connecting to the M25)

Reference: CAV210060

Request a viewing for this property

Simply fill out the form below or alternatively call us on 020 7839 0888

* Mandatory fields