3 Bedroom Ground Floor Flat
£379,000
Bearsden, Glasgow

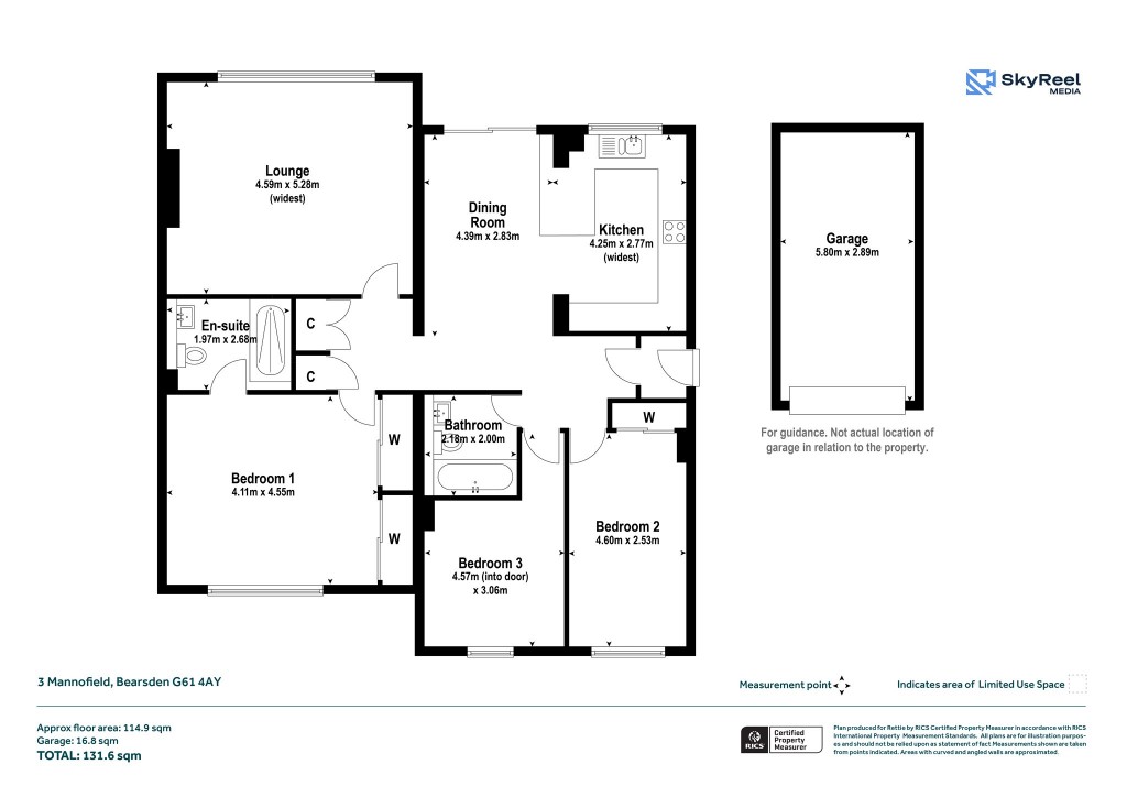
Floorplans For Bearsden, Glasgow
EPC Graph for Bearsden, Glasgow}

Description


A truly impressive, 3-bedroom, luxury ground floor flat in a much-admired development of only ten apartments, built by Cala Homes, and amidst expansive lawned residents gardens. • Security controlled communal entrance (only used by three other flats) • Reception hall and entrance vestibule • Sizeable lounge with broad window overlooking gardens • Open-plan dining room through to impressive kitchen (patio doors) • 3 double bedrooms • Luxury bathroom and ensuite shower room • Direct access to private terrace and resident’s gardens • Garage and resident’s car park • Gas central heating plus some underfloor heating • uPVC double glazing • Alarm Description Mannofield is a very select development of only 10 luxury apartments - 5 ground floor and 5 first floor (duplexes). It was built circa 1980 by Cala Homes with all flats enjoying expansive views across the generous, lawned, resident’s gardens. There is ample parking provision, and each flat has its own single garage. No.3 is a three-bedroom ground floor apartment and as clients can see from our photographs and video the subjects have been extensively upgraded and modernised from the original specification. A key alteration is the now open-plan arrangement of the dining room (featuring patio door access directly to a private sun patio/terrace and the south facing gardens) and the very smartly fitted kitchen. Both the bathroom and the ensuite shower room have been refitted with luxury suites designed and supplied by Scope Bathrooms, wardrobe doors to the principal bedroom have been changed All internal doors are also renewed, with smart oak sets. The gas central heating system features a Worcester Greenstar 34 CDi Classic combination boiler and as an added touch of luxury there is underfloor heating (electric) in the kitchen, bathroom, and ensuite shower room. The lounge features a modern, remote-controlled, electric fire. For security, in addition to the door entry phone system to the communal entrance vestibule and hallway there is an alarm system to the flat itself. Flooring includes solid oak (vestibule, hall, dining room); tile (kitchen, bathroom, shower room); carpet (lounge, bedrooms). Through nearly all of the flat are recessed ceiling downlights. Truly in walk-in condition it offers much more, and certainly more space, than many of those flats built in more recent times and represents a most suitable purchase for individuals or couples, perhaps particularly so for those looking to downsize, post family home. Summary of Accommodation Following entry to the block via an initial entrance vestibule and a security-controlled resident’s hall No.3 has an entrance vestibule itself opening to a very good-sized reception hall, with storage, leading directly to the open-plan dining room and kitchen. The dining room has patio doors to a private sun patio and beyond this the resident’s gardens. It is defined from the kitchen by a peninsula breakfast bar. The kitchen is very smartly fitted and boasts a range of kitchen units by Ultima in matt white offset by granite worktops and matching upstands. Integrated appliances include by Neff a halogen hob, oven (with a “slide & hide” door), combination microwave-oven, and a warming drawer; other appliances include a concealed dishwasher and fridge-freezer, a Miele washing machine, and a Siemens tumble dryer. The principal bedroom is a great size and has two sets of fitted wardrobes along one wall with replacement modern sliding doors. Ensuite is a very smart, fully tiled, shower room with oversized “wet zone” shower enclosure with a Hansgrohe thermostatic shower (with both deluge and hand shower heads) and the convenience of a hardwood bench seat. There is a large wall vanity mirror and a chrome towel radiator. Bedrooms 2 and 3 are both doubles and these are serviced by another very smartly equipped and fully tiled bathroom with once more a Laufen suite. Hansgrohe and Gerberit fitments, and another chrome towel radiator. The sanitaryware and fitments in both the bathroom and the ensuite were supplied by Scope Bathroom and have been superbly designed and fitted. Grounds The gardens are generous, level, and fall mainly to grass and follows the line of Chesters Road where a new boundary fence, and pine trees, provide screening. There is parking provision for the residents (not allocated) and, as with all the other apartments, No.3 has its own single garage where the garage door was renewed. The development is factored and managed by Taylor Martin (4 Berkeley St, Glasgow, G3 7DW). Location Mannofield is in the Thorn district and is only some half mile (0.6 mile) west of Bearsden Cross. Here you will find a good range of independent retailers, cafes, restaurants, and a bar along with a Marks and Spencer food hall. There are dentists and doctor practices a well-stocked Post Office, and churches of various denominations. Bearsden railway station, with its regular services to Glasgow's West End and City Centre, is under one mile away. Bus services operate from The Cross. Nearby are Thorn Park and Thorn Tennis Club. At the top of Thorn Road, beside Thorn Park, is Bearsden Golf Club. Sat NAV ref: G61 4AY EPC : BAND D COUNCIL TAX : BAND G TENURE : FREEHOLD

Reference: BXL250628

Request a viewing for this property

Simply fill out the form below or alternatively call us on 020 7839 0888

* Mandatory fields