2 Bedroom Detached House
£345,000
Bearsden

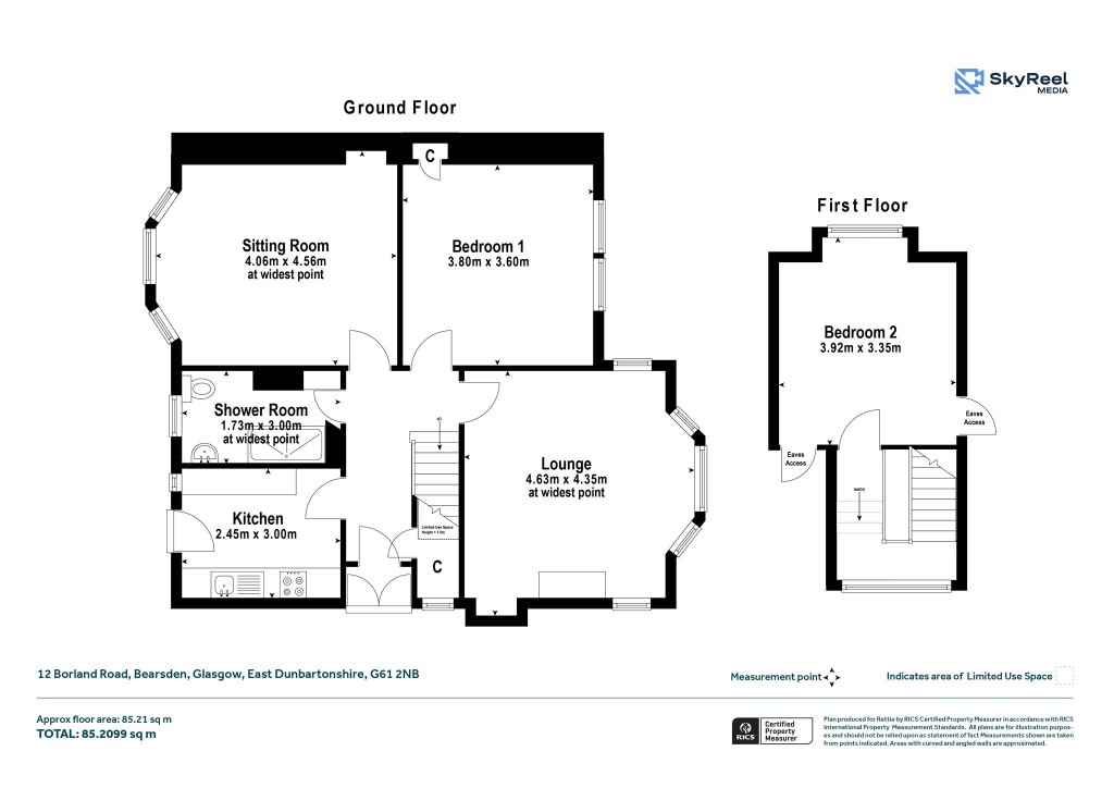
Floorplans For Bearsden
EPC Graph for Bearsden}

Description


A pretty, cottage style, Detached House built by the highly regarded pre-war builders, The Southern Building Company, within Kessington and upon a south facing garden. • Entrance vestibule and hall • Bay windowed lounge • Sitting room(or bed 3), also with bay window • Two principal bedrooms (one upstairs) • Kitchen and shower room • uPVC double glazing • Gas CH (2021 boiler) • Fine sized garden, south facing at rear Description The properties built in the 1920s/1930s by The Southern Building Company are very much regarded. Built only in the Kessington district, they are of a greater style variety than those elsewhere. This four apartment (two public, two bedrooms) Detached House is one of a charming cottage-like design and was built as a full two-level house (not one with an attic conversion) and features are fine hall and staircase. The four apartments are used as two public and two bedrooms but can be configured as a lounge and three bedrooms if needed. It has been in the ownership of one family since 1968 and has been a much loved, and cared for, home. In recent years, and decades, the property has been upgraded. Windows have been refitted with modern uPVC double glazed units, and the gas central heating system had a new boiler (Vaillant ecoFITpure) installed in 2021.Note that one of the radiators in the lounge is disconnected. A smart Howdens kitchen, in oak laminate, was fitted and the bathroom was made into a shower room. There are fireplaces in both public rooms. Summary of Accommodation The entrance vestibule, with uPVC storm doors, is to the east-side of the house. From here, via a uPVC double glazed inner door, is a good-sized reception hall with coats cupboard (window). Front facing lounge with bay window(N) and two original hexagonal, stain leaded, windows to east and west. The oak fireplace, with marble inlay and hearth, has an electric fire. The sitting room (could be used as a third bedroom) also has a bay window and is set to the rear. Original alcove cabinet, tiled post-war fireplace. The galley style kitchen features Howden units in oak laminate with a light coloured worktop. Appliances include: four-burner gas hob, oven, washing-machine, fridge, and freezer. The kitchen has windows to side (E) and rear (S), and has a uPVC double glazed back door. Bedroom 1 is a fine sized bedroom with two frame window to front (N). Completing the ground floor accommodation is a shower room with white suite, the shower enclosure having a powerful thermostatic shower. Upstairs, the return flight stair passes a wide dormer window at a ¾ landing. The top landing has door to bedroom 2, a very cottage like room with two-frame dormer window to the side (W) and two access doors to eaves/attic storage. Garden The plot is essentially level and lies mainly to grass, the front garden screened on three sides by privet hedging. A red gravel drive, to the east side of the house, leads to a very old garage that truthfully needs replacing. A matching gravel path leads around the front of the house to the west side of the property where there is a planted shrubbery bed. The back garden has some planting, including an established rhododendron but lies mainly to grass and has a patio area. Whilst in fair order it could, generally, benefit from a make over and arguably more modern landscaping. It is a fine size however and really is an asset to the house, particularly with its due south orientation. Location The Southern Building Company only built in seven addresses in Kessington and for Borland Road only in its westernmost section. Being in Kessington it is therefore extremely handy for the shops on Milngavie Road and is but a half-mile walk to Hillfoot railway station. Bearsden Cross, the heart of the town, is some 0.9 mile away. For those with children, school catchment is Killermont Primary and Boclair Academy with its new £40m+ state-of-the-art school premises. As a home this house, whilst suitable for some families, may best align with couples or individuals be they young seeking to move into this highly desirable Glasgow suburb or those already within the area seeking to downsize for retirement/semi retirement, with all but one room being on the ground floor. Sat NAV ref: G61 2NB EPC : BAND D COUNCIL TAX : BAND F TENURE : FREEHOLD

Reference: BXL250525

Request a viewing for this property

Simply fill out the form below or alternatively call us on 020 7839 0888

* Mandatory fields