3 Bedroom Semi Detached House
£255,000
Milngavie

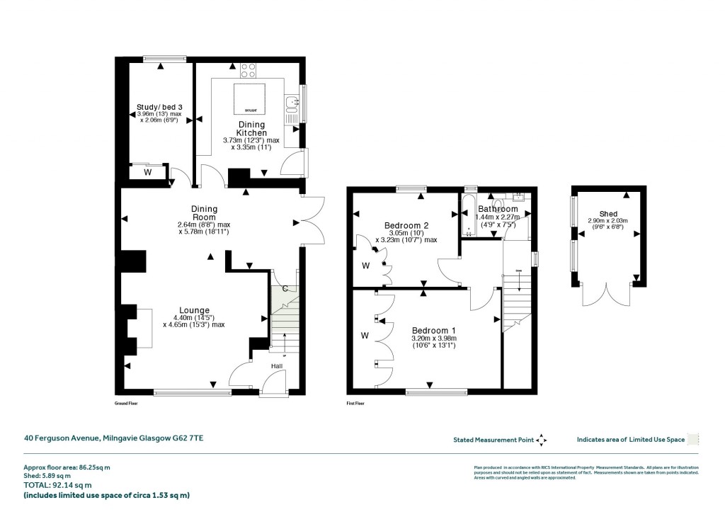
Floorplans For Milngavie
EPC Graph for Milngavie}

Description


• Extended/cleverly reconfigured three bedroomed semi-detached villa • Great location in quiet residential cul-de-sac with lovely leafy views • Fantastic room sizes, great ceiling heights, well appointed throughout • Close by amenities of Milngavie Village • Double glazed window units, gas central heating via contemporary combi boiler • Craigdhu Primary & Douglas Academy catchment • Low maintenance outdoor space Located in the private/secluded crescent section of Milngavie’s particularly well placed Ferguson Avenue, this three bedroomed semi-detached villa has been successfully extended over time and reconfigured to create a spacious family home with fabulous room sizes and great ceiling heights throughout. A fantastic home with a brilliant location close by the amenities of Milngavie Village and within catchment for the nationally recognised facilities of Douglas Academy. Early inspection is advised. Summary of Accommodation Hallway, Lounge, Dining Room, Dining Kitchen, Study/Bed 3, Family Bathroom, Two Bedrooms to First Floor Outside, the property features a section of timber decking with direct access via double doors from the dining room, with section of hard landscaping providing plenty space for outdoor furniture/entertaining. A great house in a lovely pocket of Milngavie Situation Very Convenient location within the Clober district, close by Clober Golf Course and not far from Allander Park, the property is very well placed for the Milngavie village and, for those with children, nearby Craigdhu Primary and the excellent Douglas Academy schools. The village centre is within a mile and, here, its pedestrianised precinct has a fantastic array of quality shops and services, including the high street names of Boots, Marks & Spencer’s and Tesco, with, a little further on, a Waitrose at the West of Scotland Rugby Ground. Closer by are a couple of well stocked and handy local stores on Craigash Road. Milngavie has regular bus services and, importantly, has railway station with four trains an hour into Glasgow’s West End and City Centre. SAT NAV REF: G62 7TE EPC : BAND C COUNCIL TAX : BAND C TENURE : FREEHOLD

Reference: BXL250521

Request a viewing for this property

Simply fill out the form below or alternatively call us on 020 7839 0888

* Mandatory fields