3 Bedroom Detached House
£495,000
Bearsden

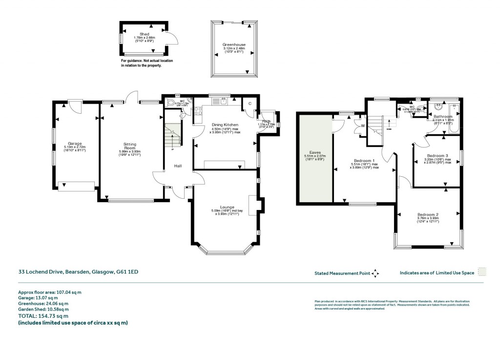
Floorplans For Bearsden
EPC Graph for Bearsden}

Description


• Individually designed, detached 1930’s villa • A wonderful family home set upon large garden plot • Forming part of a coveted, tree lined address • Striking period aesthetic, great room sizes, potential to augment • Six principal apartments – three bedrooms/three public rooms • Reroofed in 2020 • Fantastic cellar space accessed via hatch to kitchen • Off street driveway parking and garage • Superb gardens to rear – south/west facing • A house with exceptional potential An immediately striking detached villa dating from the 1930’s and completely individual in design, this wonderful family home is set upon a large, well established garden plot and enjoys a fantastic position in Bearsden’s Lochend district. Under the same ownership for a number of decades, the property features abundant period charm and, whilst requiring a programme of investment/upgrading, provides near boundless potential for the incoming purchaser to redesign/update according to taste and budget. Immediately striking with its asymmetric/offset frontage, red brick dressings, period windows and archway motif surrounding entrance doorway, the property features superb room sizes throughout and, at current, a floor space approaching 1,400ft². Given the size/scale of the plot, there is potential here for significant extension to the rear (subject to permissions/warrants from the local authority). Our suite of HDR images, 360° immersive tour, HD video and floorplan will allow for thorough desktop appraisal of the property, with a summary of the accommodation to be found as follows:- Summary of Accommodation Entrance hallway with stair to first floor, cloakroom w.c, bay windowed lounge with feature fireplace, sitting room with feature fireplace, dining kitchen, porch, family bathroom and w.c to first floor, three double bedrooms The property features fantastic garden space to both front and rear, with the rear garden notable for its generous size, privacy and lovely arrangement with a variety of mature specimens. Situation The house is less than a mile from Bearsden Cross and circa ½ mile from Bearsden railway station. Not far away is the expanse of Colquhoun Park (great area for kids). School catchment is Colquhoun Primary (placement requests for Bearsden Primary have been granted in the past) with secondary at Boclair Academy. Within Bearsden is St Nicolas’ Primary, Bearsden Early Years. SAT NAV REF: G61 1ED COUNCIL TAX : BAND G EPC : BAND D TENURE : FREEHOLD

Reference: BXL250489

Request a viewing for this property

Simply fill out the form below or alternatively call us on 020 7839 0888

* Mandatory fields