3 Bedroom Semi Detached House
£310,000
Bearsden

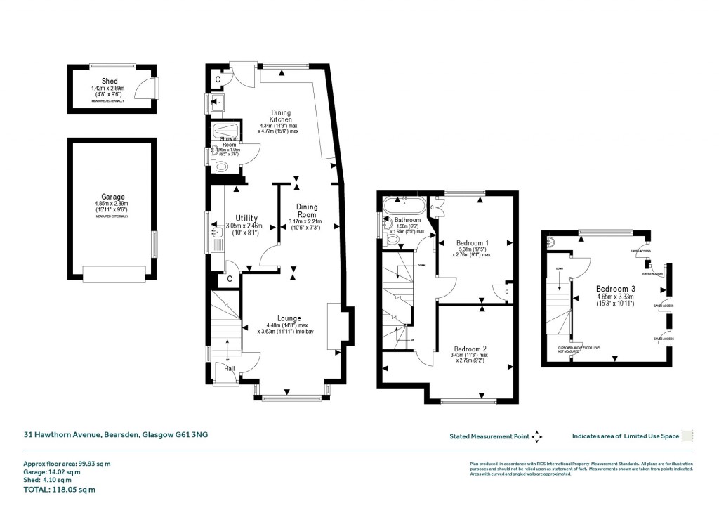
Floorplans For Bearsden
EPC Graph for Bearsden}

Description


• Extended, three bedroomed semi-detached villa • Built by John MacDonald in a ‘Dutch’ style • Great location in Bearsden’s popular Burnbrae district • Three double bedrooms, large lounge/dining area, dining kitchen • Attractive backdrop onto the grounds of Kilmardinny Loch Nature Reserve • Mosshead Primary and Bearsden Academy catchment • Off street driveway parking and detached garage • A great family house The ‘Dutch’ style villas by John MacDonald are hugely popular owing to their abundant character and lovely position in Bearsden’s popular Burnbrae district. Here, No.31 Hawthorn Avenue enjoys a fabulous position with a south facing rear garden backing onto the established greenery of Kilmardinny Loch Nature Reserve – simply lovely. The property has, over time, been successfully extended to its rear elevation (at ground floor level), with a fixed staircase having been implemented at first floor level to allow for the creation of a third double bedroom. Plenty space on offer here and with corners/retreats for all the family. Internally, the accommodation is ‘ready to go’, with plenty room to redesign/redecorate according to taste. A superb family home in a lovely pocket of Bearsden with fabulous schools and recreation space nearby. Summary of Accommodation Hall, Lounge, Dining Room, Dining/Kitchen, Utility Room, Family Bathroom, Three Double Bedrooms Externally, the property features good garden space to the rear – south facing, very private and backing onto the established greenery of Kilmardinny Loch Nature Reserve., home to the popular Gruffalo Trail. Situation Hawthorn Avenue is ideally located with wide access to the surrounding amenities that are available within Bearsden and Milngavie, with Bearsden Cross offering a variety of boutiques and shops and a Marks and Spencers food hall. Milngavie Road has an Asda supermarket and for those who are commuting, the area is well provided for by the national road network system, with both Switchback Road and Maryhill Road providing convenient access into Glasgow city centre by car. For those wishing to use public transport, there are railway stations at Bearsden, Milngavie and Hillfoot offering regular services to Glasgow and Edinburgh. Recreational pursuits within Bearsden and Milngavie are varied, with a variety of sports clubs and leisure centres nearby, which include the recently rebuilt Allander Sports Centre and the Nuffield Health Fitness & Wellbeing Gym on Strathblane Road. Mugdock Country Park, located in Milngavie, offers a variety of paths from which to explore, either on foot or cycle. SAT NAV REF: G61 3NG EPC : BAND F COUNCIL TAX : BAND E TENURE : FREEHOLD

Reference: BXL250465

Request a viewing for this property

Simply fill out the form below or alternatively call us on 020 7839 0888

* Mandatory fields