3 Bedroom Detached House
£460,000
Milngavie

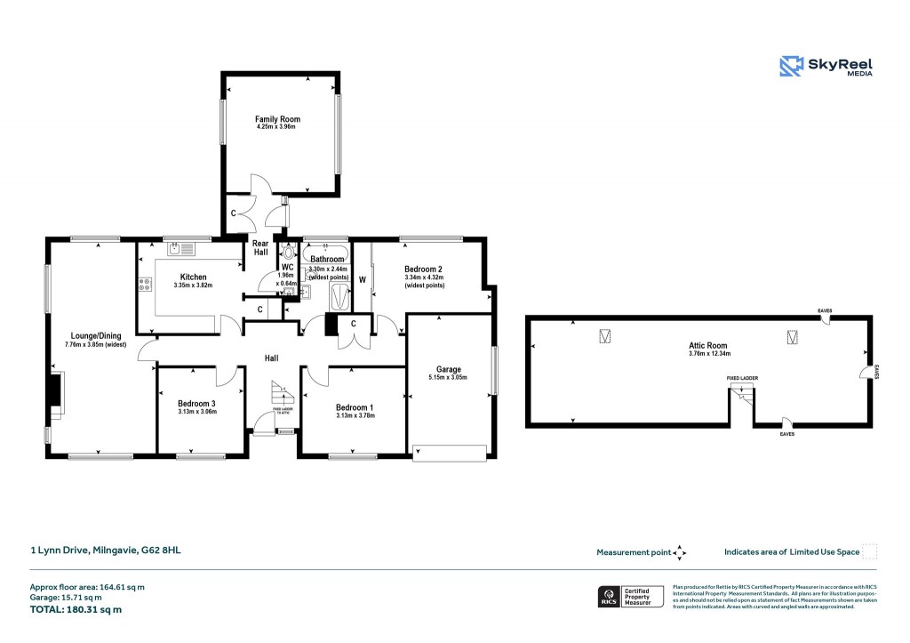
Floorplans For Milngavie
EPC Graph for Milngavie}

Description


A modern (1960) Detached Bungalow extended some 45 years ago, on a prominent corner garden. There is a large floored and lined attic that offers great potential to create more rooms beyond the existing three bedrooms. Detached bungalow Three bedrooms Lounge/dining room Family room Smart kitchen New (2023) bathroom with shower enclosure WC Rewired and replumbed (approx. 10 years ago) Garage (electric door) & two driveways Gas CH & Double glazing Floored/lined attic, with clear development scope Description This is the first time that this home has come to the market. Owned by the one family since it was built in 1960 it is a fine-sized Detached Bungalow set on a prominent, level, corner garden to Lynn Drive and Strathblane Road. A three bedroomed property the original house was extended some forty-five years ago to add the rear hall and the family room. As clients will see from our floorplans, and photographs, there is a large attic that has been floored and lined, and which has been used as a cinema room. Accessed via a loft ladder, with a fixed wooden ladder-stair, the attic has clear scope to be developed to create additional bedrooms/bathroom, subject to obtaining the necessary planning authority consents. As it is, the subjects will fulfil the needs of many families and most couples, as buyers, with its three bedrooms, a bright lounge/dining room (with windows on three sides), and the family room. The kitchen is a good size and has Shaker units, with solid oak worktops and upstands, and a cute little larder area. The new (2023) bathroom has been superbly done and includes a large “wet zone” shower area. Heating is mains gas with an efficient Ideal Vogue Max Combi 40 boiler (installed in 2023) and all windows are double glazed. Attached to the south side of the house is a single garage with a modern Hormann garage door with its Promatic remote-controlled mechanism. Clearly well looked after, the house was rewired and replumbed about 10 years ago. The corner plot allows for two driveways. The one from Lynn Drive is 3-car wide and the one from Strathblane Road will accommodate several cars. Summary of Accommodation Open entrance porch. T-shaped reception hall with store cupboard. The triple aspect lounge/dining room, with a real fire (lovely hardwood floor here). Family room (double aspect - south and north). Kitchen with cream Shaker units, oak worktops and upstands, Blanco sink and appliances of: 4-burner gas hob, oven/grill, cooker hood, concealed dishwasher and fridge-freezer. Off, is a cute larder area. Quality travertine floor tiling here which extends to the rear hall (back door and a boiler cupboard). WC - with contemporary modern suite. 3 bedrooms. Bathroom - impressively done and fully tiled withPorcelanosa WC, Roca WHB and bath and a “wet zone” shower enclosure with smoked-glass shower screen and a powerful thermostatic shower with both deluge and hand shower heads. The attic is not only floored and lined but also carpeted and decorated. It has several LED ceiling downlighters and access points to the eaves for storage. Location The house sits upon a level garden. Its corner plot is an attractive feature and as well as the two driveways there is a lawn. Hedge screening to both the road and to the property’s pathway. Planted beds and to the rear of the house an enclosed (gated and fenced) sheltered sun area with pergola patio, a section of artificial grass, garden shed and a hard standing area behind the fence to the Lynn drive driveway. It is located on the very northeasterly edge of the village close to the Craigmaddie Reservoir and the Nuffield Health and Wellbeing Gym (formerly Esporta) yet it is only a 5 to 10 minute walk (0.6 mile) to the Town Hall, railway station, and the easterly end of the village’s pedestrianised centre. The railway station has regular services to the West End and city centre as well as services to Edinburgh. The village has many independent retailers but also the High Street names of Marks and Spencers (food hall), Boots, and Tesco. At the Burnbrae Retail Park is a large Waitrose, an Aldi and a Home Bargains. There are a few cafes and lots of walks with Milngavie being famous as the start/finish of The West Highland Way. For those with children school catchment is Milngavie Primary and the high-performing Douglas Academy. In Milngavie is the Junior School for The Glasgow Academy and there is also the Milngavie Early Years Learning Centre. Sat NAV ref: G62 8HL COUNCIL TAX : BAND G EPC : BAND D TENURE : FREEHOLD

Reference: BXL250458

Request a viewing for this property

Simply fill out the form below or alternatively call us on 020 7839 0888

* Mandatory fields