4 Bedroom Detached House
£395,000
Bearsden

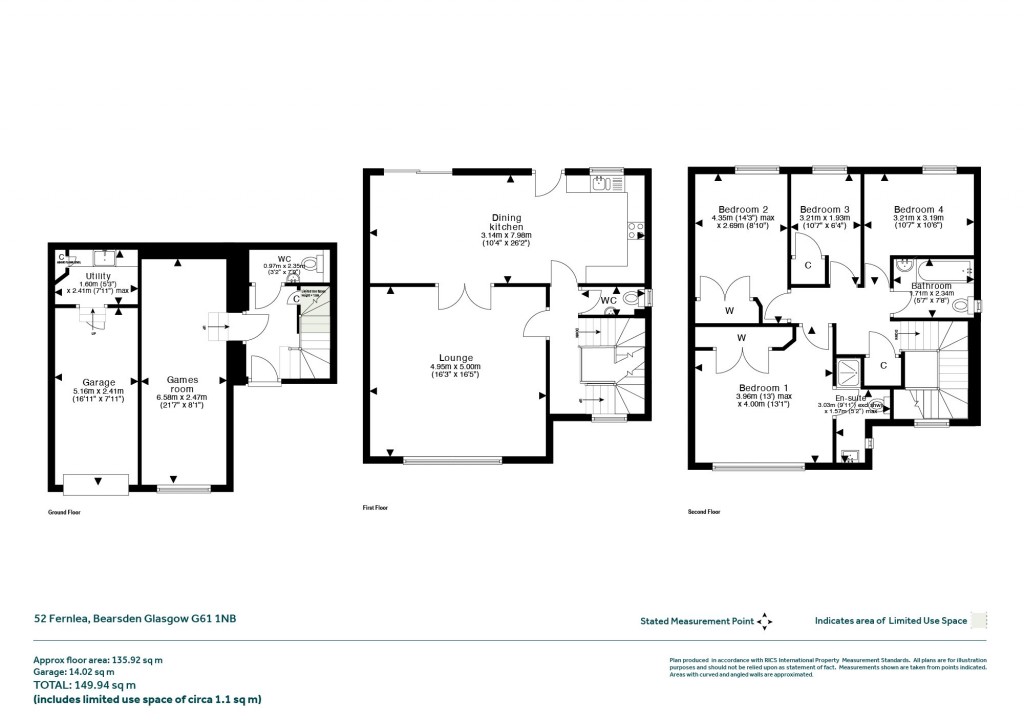
Floorplans For Bearsden
EPC Graph for Bearsden}

Description


• Detached, four bedroomed townhouse by Persimmon Homes • A fabulous home formed over three levels • Part of popular modern development to the south of Bearsden • Well maintained and appointed throughout (recently replaced ensuite shower room and gas central heating boiler) • Four bedroom/three public room arrangement (fabulous open plan dining/kitchen) – floor space over 1,450 sq.ft • Off street driveway parking and garage • Beautifully arranged garden space to rear – south facing/very private Located amidst a popular, now well-established modern development to the south of Bearsden, this well-proportioned and cleverly arranged four bedroomed townhouse was constructed by Persimmon Homes in the late 1990’s and delivers accommodation that will suit growing/established families and couples in equal measure. Formed over three levels, one half of the former garage has been converted to create an additional public room (perfect for use as gym/games room) – a feature that only enhances the adaptability of the already versatile footprint on offer here. The property has been very well maintained over the years (as review of the surveyor’s Home Report will corroborate) and is very nicely presented in mainly neutral tones (accentuating a feel of space and light), with the successful bidder afforded opportunity to, over time, employ their own decorative themes and ideas. Great room sizes/proportions are to be found throughout, with the entire first floor (comprising lounge and open plan dining/kitchen area) sure to be a highlight for most through the door here. A fantastic contemporary home located in a quiet and leafy pocket of Bearsden. A must see. Summary of Accommodation Lounge, Dining/Kitchen, Games Room/Gym, Four Bedrooms, Family Bathroom & Ensuite Shower Room, Cloakroom W.C x2 Externally, there is superb garden space to the rear of the property – quite atypical of a modern townhouse. Sections of lawn, stone paviours and timber decking marry to great effect, with planted borders and beds providing splashes of colour and points of interest. South facing and great for entertaining/relaxing in equal measure. Situation Fernlea is a cul-de-sac and situated off Canniesburn Road and is to the west of Canniesburn Toll. It has a pleasant, and quiet, outlook to the wooded copse opposite and is well placed for accessing the local amenities of the area. For those with children, school catchment is for the highly regarded Westerton Primary and for Boclair Academy, where a rebuild worth £40,000,000 has left a truly state-of-the-art campus. Also, within Bearsden, on Duntocher Road, is St Nicholas’s Primary and on Ledcameroch Road the Junior School for the private High School of Glasgow. Bearsden Cross is about a mile to the north and here you will find an excellent selection of independent stores and a Marks & Spencer Foodhall. There are Restaurants and Cafes, a Bank and a Post Office. Railway Stations can be found either at Westerton or at Bearsden, both of which, particularly the former, provide very regular links into Glasgow’s West End and City Centre including a service through to Edinburgh. SAT NAV REF: G61 1NB EPC : BAND C COUNCIL TAX : BAND G TENURE : FREEHOLD

Reference: BXL250452

Request a viewing for this property

Simply fill out the form below or alternatively call us on 020 7839 0888

* Mandatory fields