1 Bedroom Upper Floor with Lift Flat
£105,000
Milngavie, Glasgow, East Dunbartonshire

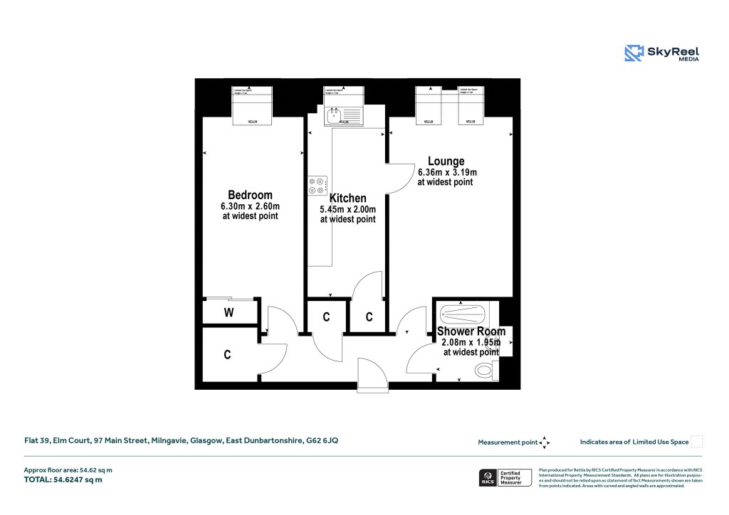
Floorplans For Milngavie, Glasgow, East Dunbartonshire
EPC Graph for Milngavie, Glasgow, East Dunbartonshire}

Description


One bedroom, top floor, retirement flat in the handily located Elm court development, just south of village centre and Lennox Park. One bedroom or retirement flat Top floor (2nd), with lift Bright lounge Good sized, modern, kitchen Wet room (shower room) Upgraded electric heating system Resident’s lounge On site manager Residents parking and garden Description Elm Court was built some forty-five years ago and is a charming little development of 39 retirement flats in a convenient location south of the village centre and just north of the Burnbrae Retail Park where there is a Waitrose, Aldi, and Home Bargains. For sale is this top floor (2nd), one bedroom, flat orientated to the rear of the building with a pleasant and bright easterly outlook by virtue of its large Velux windows. The flat has been upgraded and features a modern Howdens kitchen, a significant improvement to the heating system with Elnur Gabarron smart storage heaters (ECOHHR30 model) installed in the hall, lounge, and kitchen. The hot water system has an upgrade with a far more efficient modern Megaflo unvented direct hot water cylinder. The original bathroom has been made into a wet room - this is a far more appropriate facility for those with any mobility issues or of an age where ease of access would be a benefit. Decoratively a neutral palette is used throughout with floor coverings being laminate in most areas. The development is managed by Lorimer Property to which monthly costs, to include building insurance, managers wages, cleaning of communal areas, and garden maintenance, currently are approximately £185 pcm. Clients should note that the building has just had its roof renewed. This will futureproof this aspect for very many years to come, our understaning being that it comes with a twenty year warranty. For reference, our client has paid for their share of these works Summary of Accommodation A resident’s main entranceway, from the car park, to the rear (east) side of the building. This is controlled by a security door-entry phone system. Resident’s hall and individual floor hallways, connected and accessed via lift and stairs. The flat itself has a hall with two storage cupboards (one large), lounge, kitchen with maple style units by Howdens and with contrasting black worktops. Appliances include - electric hob, oven, fridge-freezer, and washer-dryer. The bedroom is a double and has wardrobe provision with sliding, Regency style, white doors. The wet room has a single membrane vinyl floor with floor drain and a modern Mira Advance electric shower. The WC and WHB are white modern pieces as is the white, wet-wall, wall panelling. Electric fan heater. On the lower ground floor is the resident’s lounge with kitchen, a regular hub for meetings and the often scheduled events. Location As detailed, Elm court is just south of the village centre and the greenery of Lennox Park. It is therefore handy for the shops and amenities to be found there as well as the nearby local shops at South Mains Road. Just a few hundred yards south at the Burnbrae Retail Park is a large Waitrose with cafe, an Aldi, and a Home Bargains. On Milngavie Road is The Burnbrae - a lovely pub with restaurant. Milngavie village centre is pedestrianised and includes independent retailers along with an M & S food hall, Boots, and Tesco. It has a railway station with regular services to the West End and City Centre. Sat NAV ref: G62 6JQ EPC : BAND D COUNCIL TAX : BAND D TENURE : FREEHOLD

Reference: BXL250450

Request a viewing for this property

Simply fill out the form below or alternatively call us on 020 7839 0888

* Mandatory fields