5 Bedroom Detached House
£550,000
Balfron

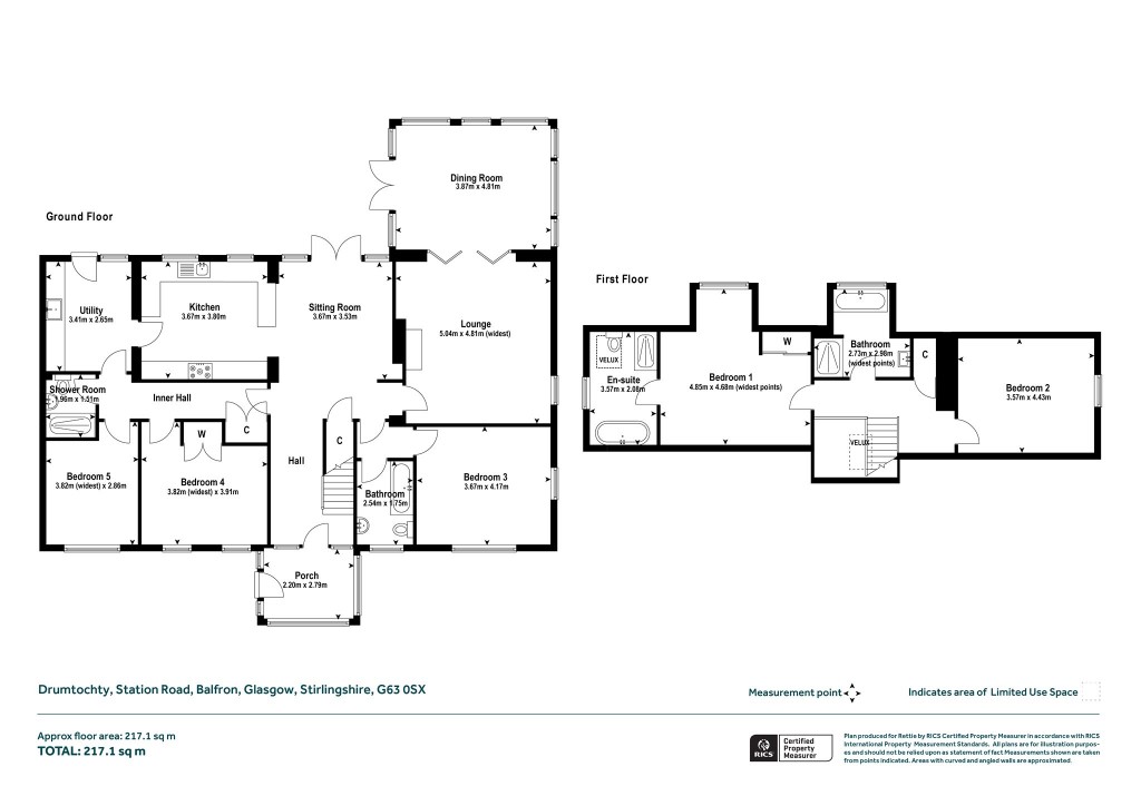
Floorplans For Balfron
EPC Graph for Balfron}

Description


• Large five bedroomed detached home • Fabulous location to the outskirts of Balfron Village • Stunning backdrop to established treeline across rolling farmland • Significantly redeveloped (2007) from original property (c.1965) • Two floors, eight principal apartments, floor space of approx. 2,335 sq.ft • Fantastic, south facing garden space to rear with raised deck direct access points from property • Balfron Primary/Academy catchment Originally constructed c.1965, ‘Drumtochty’ is an equally charming yet sizeable and impressive property that was designed in a cottage style but has, over time, been developed into a large, adaptable family home. The property occupies a highly appealing position to the outskirts of Balfron, with the most stunning backdrop across farmland and towards the Fintry Hills/Campsie Fells whilst being minutes from the amenity rich village centre. A true ‘forever’ family home, with early first-hand inspection advised. Internally, the property delivers on a number of fronts, with great room sizes found across the eight principal apartments – it really is assessment of the rear elevation that will reveal the space on offer here. Highlights of the specification are many and varied – a roof set to beautiful Scottish slate, solid oak and mahogany floors across much of the ground floor, contemporary PVCu double glazing, Worcester Bosch Greenstar 8000 style boiler (installed in 2024 with associated plumbing also upgraded at the time). As part of the renovation/development project undertaken by our clients, a stunning architect designed (Designworks) sun room was added as a seamless addition to the formal lounge – a fabulous space with vaulted ceiling and exposed trusses – a perfect space to sit and enjoy the stunning situation of the property. Summary of Accommodation - Glazed entry porch - Large reception hallway with galleried landing - Formal lounge with log burning stove - Sun/dining room - Sitting area - Kitchen with breakfast bar area, range of quality appliances inc. ‘Rangemaster’ stove and matching extraction unit - Dedicated utility room - Five double bedrooms - Bathroom, shower room and ensuite off principal bedroom Situation The house is located but a short stroll from the village centre and here you will find a good range of local amenities and shops, including a large Co-op store, the village’s famous Doyle’s Café, pharmacy, opticians, butchers, bakery, village pub and an excellent health centre. Outstanding local Primary and Secondary schooling can be found within the nucleus of the village centre. A bus service connects the village to surrounding districts and, indeed, to Glasgow City. The village has a golf course and is surrounded by some stunning countryside. Glasgow City Centre is approximately eighteen miles away, with Stirling some nineteen miles. Both locations are accessible within approximately thirty to forty minutes via strong road links. SAT NAV REF: G63 0SX COUNCIL TAX : BAND G EPC : BAND C TENURE : FREEHOLD

Reference: BXL250274

Request a viewing for this property

Simply fill out the form below or alternatively call us on 020 7839 0888

* Mandatory fields