3 Bedroom Detached House
£460,000
Bearsden

Floorplans For Bearsden
EPC Graph for Bearsden}

Description


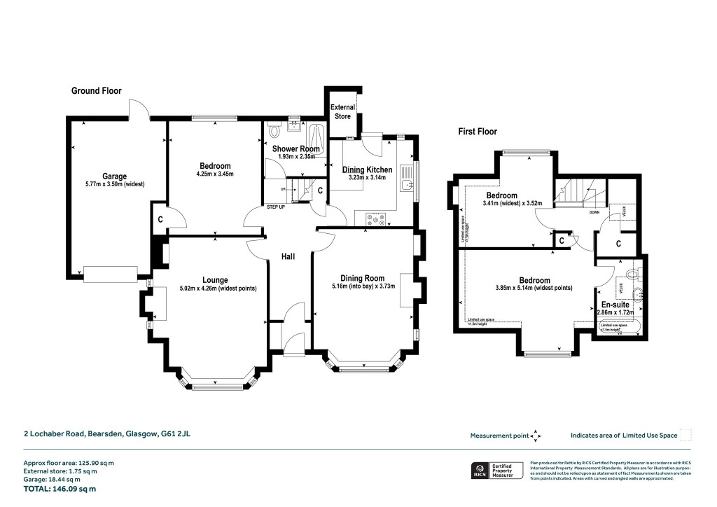
Detached House Bay windowed lounge with inglenook Dining room Shaker kitchen 3 bedrooms Ensuite bathroom to primary bedroom Shower room uPVC double glazing, gas central heating Garage Very private rear garden A five apartment (3 bedrooms) Detached “Dormer” Bungalow in the Killermont district built in the 1930s by John Lawrence. The property is on an essentially level garden orientated west to the front and east to the rear where the back garden is particularly well screened and private. The design of the house includes an attractive front veranda providing a nice architectural touch. Brick built, the exterior walls have just been freshly painted, all set under a pitched and tiled roof with dormer projections. Windows, bar the three stained-leaded lancet windows, that have been kept in the inglenook and dining room, and the single lancet window in the kitchen and dining room, are uPVC double glazed. Central heating is mains gas with an efficient Ideal Logic c30 combination boiler installed only in May 2022. Recently installed Living flame gas fires are featured in both the lounge and the dining room. The kitchen had a very recent upgrade with some new Shaker doors and some rooms redecorated with new flooring. Sanitary ware in both the ensuite bathroom and the house shower room is modern white. Summary of Accommodation Veranda. Entrance vestibule. Hall. Lounge. Dining room. Kitchen. Three bedrooms (one downstairs, two upstairs), the primary bedroom having fitted wardrobes. Ensuite bathroom to primary bedroom with electric under floor heating in addition to a chrome heated towel radiator. Spa bath featured here. Shower room - located on the ground floor it features an oversized shower enclosure with an electric Triton T80z shower. The radiator here is a traditionally styled chrome and column one. Outside, the gardens offer a mix of grass, hard landscaping, and screening. The rear garden has a sun patio and, in the corner, an old timber sundeck. At two-car long driveway leads to the property’s single garage attached to the side of the house and with a pass door to the rear garden. There is space to park a third car to the right of the driveway. Location Killermont is on the very southeast edge of Bearsden and falls within the catchment for Killermont Primary and Boclair Academy. At the foot of Lochaber Road, the house is near to Rannoch Drive and provides ready access, via Maryhill Road, to the West End and the City Centre. Literally around the corner is the entrance and grounds to Glasgow Golf Club, one of the oldest golf clubs in the world. In Killermont is King George V Park, a great spot for the kids. Not far away are the Templehill Woods, a great spot for the dog. Bearsden Cross, the heart of Bearsden, is approximately 1.2 mile to the northwest. Here you will find an excellent selection of services including cafes, restaurants, and shops including a quality fishmongers and a butcher. Nearer still, at Kensington, is a Sainsbury's convenience store and a large Asda. Postcode: G61 2JL COUNCIL TAX : BAND F EPC : BAND E TENURE : FREEHOLD

Reference: BXL250181

Request a viewing for this property

Simply fill out the form below or alternatively call us on 020 7839 0888

* Mandatory fields