3 Bedroom Detached House
£415,000
Milngavie

EPC Graph for Milngavie}

Description


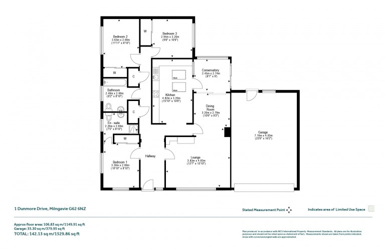
A beautifully presented detached bungalow offering generous accommodation on one level, situated within a sought after address within Milngavie’s Fairway’s Estate. This spacious home extends to approximately 142.11 sq m (1,529.86 sq ft) including the integral garage, and provides an excellent layout for family living, downsizing, or those seeking versatile single storey accommodation. Set on a prominent corner plot, the property is surrounded by well tended lawns and bordered by mature hedging, offering a good degree of privacy. The driveway provides parking for multiple vehicles and leads to an integral double garage with twin remote operated doors. Accommodation • Entrance & Hallway • Lounge • Dining Room • Conservatory • Kitchen • 3 double bedrooms • Bathroom with three-piece suite • Shower room • Garage The interior is bright and generously proportioned. The property features a welcoming reception hallway providing access to the principal rooms. Built in storage cupboards provide practical space for coats and household items. The Lounge benefits from dual aspect glazing, providing excellent natural light and views to the front garden with dining room off. The property benefits from a large dining kitchen with extensive worktop and unit storage. To complete the accommodation; three double bedrooms, bathroom, shower room and wc. Outside there is a front lawn sweeping around the corner plot with large private rear garden with patio and established borders. Integral double garage and ample parking. Location Fairways is only a mile from the village centre and the railway station. It is beside Dougalston Woods through which there are some lovely walks. By the woods are the fairways of Dougalston Golf Course (part of the Nuffield Health Fitness & Wellbeing Gym on Strathblane Road). Milngavie has an impressive array of local amenities and shops including the nearby Waitrose and Aldi at the Burnbrae Retail Park. Its village centre is pedestrianised where there are quality independent retailers along with an M&S, Boots, and a Tesco. There are cafés, some restaurants and a couple of bars. Milngavie is famed for being the start/finish of the West Highland Way and through this one can walk through Allander Park, Drumclog Moor and onto Mugdock Country Park. SAT NAV : G62 6NZ COUNCIL TAX : BAND G EPC : BAND C TENURE : FREEHOLD

Reference: BXL250027

Request a viewing for this property

Simply fill out the form below or alternatively call us on 020 7839 0888

* Mandatory fields