4 Bedroom Detached House
£450,000
Bearsden

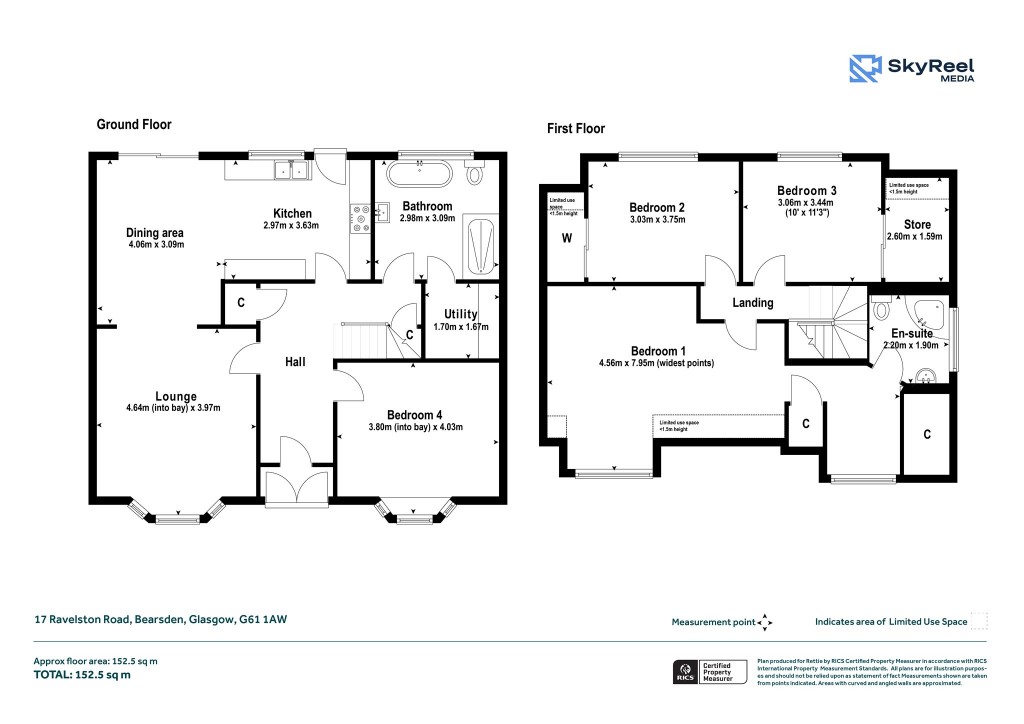
Floorplans For Bearsden
EPC Graph for Bearsden}

Description


• Detached six apartment (four double bedrooms) chalet style villa • Commanding, elevated position in popular address in Bearsden’s Switchback district • Well presented, successfully reconfigured, dormer window projections to front and rear • Expertly landscaped garden to rear (works carried out 2023) • Large dining/kitchen and formal lounge • Fabulous views to first floor across district and towards Campsie Fells • Off street driveway parking • PVCu double glazing and gas central heating A fabulous example of the spacious and well-designed chalet style villas by John Lawrence, No.17 Ravelston Road occupies a superb, elevated position in a quieter pocket of Bearsden’s particularly well-placed Switchback district. Very nicely finished throughout and decorated in mainly neutral tones, the property here strikes the perfect balance of aesthetic sharpness and practical living. From the point of acquisition, our clients have made a number of key improvements/upgrades including – windows replaced (2025 – 5 year warranty), a full rear garden makeover (2023), implementation of log burning stove to lounge. Summary of Accommodation - Storm door entry through to reception hall - ‘L’ shaped reception hallway - Bay windowed lounge - Large open plan dining kitchen - Family bathroom with dedicated utility room off - Four double bedrooms – Large principal bedroom suite – dressing area, ensuite – Bed 4(ground floor) could be utilised as additional public room as per requirement Externally, the property features brilliant garden space to the rear – cleverly designed and arranged over various tiers/sections. Off street driveway parking for plenty cars. Situation The property is located within the Switchback district and, within it, a particularly appealing address. It falls within the catchment for Westerton Primary and Boclair Academy schools and is but a short walk from the local beauty spot of Cairnhill Woods and the railway station at Westerton. Additionally, there are regular bus services into the West End and City from nearby Switchback Road and Maryhill Road. SAT NAV REF: G61 1AW EPC : BAND D COUNCIL TAX : BAND G TENURE : FREEHOLD

Reference: BXL250022

Request a viewing for this property

Simply fill out the form below or alternatively call us on 020 7839 0888

* Mandatory fields