5 Bedroom Detached House
£750,000
Killearn, Stirlingshire

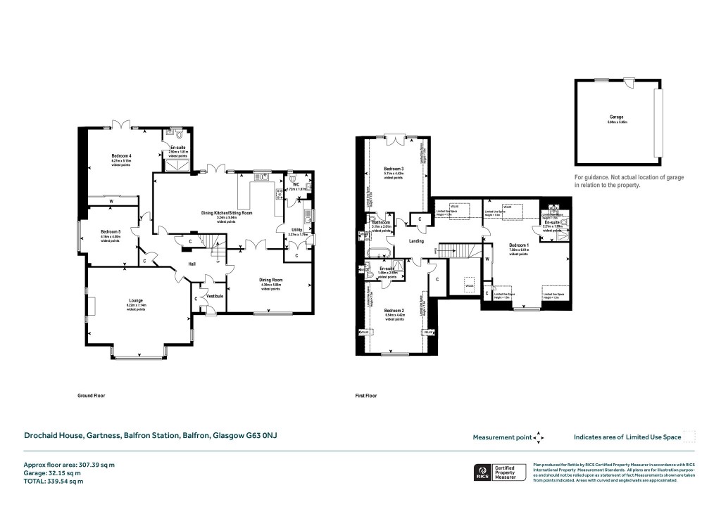
Floorplans For Killearn, Stirlingshire
EPC Graph for Killearn, Stirlingshire}

Description


• Outstanding modern country villa built in 2018 • Wonderful rural setting with stunning views • Located in Gartness (outside of Killearn) By the River Endrick and the ‘Pots of Gartness’ • Exceedingly well finished throughout • Four bedrooms, three fabulous public areas, over 3,300 sq.ft • Rolling driveway, parking for multitude of vehicles, detached garage, EV charger • Great garden space – large areas of lawn and hard landscaping combining to great effect • A truly brilliant family home Set upon a large, professionally manicured site in the Stirlingshire hamlet of Gartness, ‘Drochaid House’ is a simply marvellous architect designed home of seven principal apartments spread across a substantial floor area of circa 3,300 sq.ft. A marvellous property that will attract interest from a wide range of buying profiles. The property is accessed via a tarmacadam drive that leads to a generous parking area laid to stone chips along with the detached garage (5 ½ KW EV car charger attached). Initial inspection will showcase the really attractive design aesthetic, with an ‘oatmeal’ render beautifully contrasted by stone dressings and a beautiful slate roof. Windows are double glazed and coloured in anthracite grey. Internally, the specification is high with quality fixtures, fittings and appliances to be found throughout. Summary of Accomodation - Entrance vestibule, storage off - Beautifully tiled reception hallway, feature staircase, storage off - Bay windowed lounge, feature log burner (by Chesney, 6k output) with slate surround/backing - Formal dining room - Open plan living/dining/kitchen space (extends to over 9m in length) – breakfast bar area, range of handle free units in anthracite grey (matching worktops), range of integrated appliances - Utility room/cloakroom w.c - Study/home office/additional sitting/bedroom - Large upper landing – highlighted by Velux window, space for furniture/study space - Four large double bedrooms (three with en-suite shower room, one with ‘jack and jill’ access to main family bathroom), Bedroom 3 with double doors out to ‘Juliet’ balcony Heat to the property is provided via a Mitsubishi Air Source Heat Pump, with under floor heating to ground floor and radiators to first floor. Drainage is via a Biodisc, bollard lighting to driveway, with additional security provided via an HIC Vision Camera system. Situation Drochaid House is located in the charming Stirlingshire Hamlet of Gartness. Schooling is at Killearn for primary provision with secondary Schooling at Balfron High. Killearn has nursery schools, including a Montessori. It has a fair range of local amenities including health centre, pharmacy, a well-stocked Co-Op, two cafes, pub and an active church/village hall. The property is only 11 miles from Milngavie suburb (the nearest railway station), where you will find a far broader range of shops and amenities, and is some 16/17 miles from Glasgow City. SAT NAV REF: G63 0NJ COUNCIL TAX : BAND H EPC : BAND B TENURE : FREEHOLD

Reference: BXL240657

Request a viewing for this property

Simply fill out the form below or alternatively call us on 020 7839 0888

* Mandatory fields