5 Bedroom Detached House
£560,000
Torrance

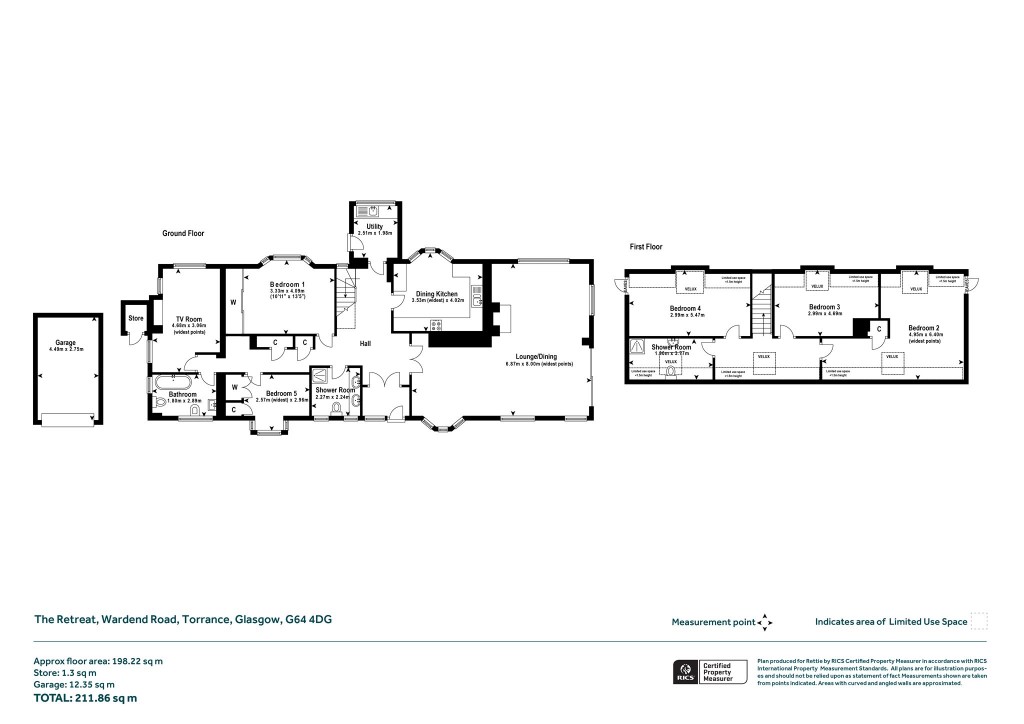
Floorplans For Torrance
EPC Graph for Torrance}

Description


Dating from the 1920s, and subsequently extended, The Retreat is privileged to be one of only six homes to call the private, cul-de-sac, lane of Wardend Road home. Set upon a sizeable, and level, garden of some 0.45-acre it is south facing to the rear and enjoys a lovely, and immediate, bucolic outlook to the front over the rolling fields that lie to the north of the village. A delightful home in an equally delightful setting. • Entrance Vestibule • Reception Hall • Impressive Lounge/Dining Room with patio doors and five windows around three sides. • TV Room • 5 Bedrooms (or 4 plus 3rd public room) • Kitchen • Utility Room • Bathroom • 2 Shower Rooms Very charming in style, almost cottage like, the façade of The Retreat belies the generous extent of accommodation offered with the subjects falling over two floors, mostly ground floor, and extending to some 2134 sq.ft (198.22 sq m) The original home would have been single storey, the seamless east and west extensions, along with the creation of first floor rooms, making the fine-sized home now available to purchase, the first time in some forty-three years. Windows were replaced from 2011 with modern uPVC framed double-glazed units with the double-glazed panes of the upstairs Velux’s renewed some ten years ago. Central heating is mains gas and here the system has an efficient, A-rated, modern Ideal Logic+ Heat 30 condensing conventional boiler. Within the lounge, the mahogany reproduction Victorian fireplace features a living flame coal effect gas fire, a cosy luxury for those cooler evenings. The house has an alarm system In addition to the oak, country style, kitchen (featuring integrated appliances) there is a good-sized utility room adjacent. For families there are two (one on each floor) shower rooms and a modern fitted family bathroom featuring a traditionally styled “ball and claw” freestanding bath. With 7/8 main apartments, in total, the house can be configured from three to five bedrooms and as such should readily accommodate the demands of most. The location of Wardend Road, and the setting of The Retreat, is a joy with the exclusivity of its private lane immediately impacting upon one’s approach. The fields opposite regularly house horses and the scale of the sizable 0.45-acre, level, garden a huge asset. Very well maintained it offers expanses of lawn as well as areas of soft and hard landscaping with sitting areas to capture the sun at various points through the day, the south facing orientation to the rear undoubtedly being that most sought-after by buyers. To the front of the plot is a detached single garage plus carport. Set on the north fringe of the village the house is still just a short stroll to the villages West Acre Park and Torrance’s excellent primary school. Secondary catchment is at the superb new facilities of the high-performing Boclair Academy, Bearsden (ranked 8th in Scotland currently, for state secondaries) to which a bus service is laid on. The village has a few local shops including a well-stocked Scotmid Co-op and there are three pubs. Major facilities can be found in nearby Bishopbriggs (about 2 miles), Kirkintilloch (2.5 miles), and Milngavie/Bearsden (approx. 4 miles). Glasgow City Centre is about 10 miles distant and easily accessible via established road connections including via the M80 (which links to M8). The Retreat has been the happiest of family homes for our clients for over forty years and will indeed be for the new, lucky, owners. Sat Nav ref: G64 4DG EPC : BAND D COUNCIL TAX : BAND G TENURE : FREEHOLD

Reference: BXL240474

Request a viewing for this property

Simply fill out the form below or alternatively call us on 020 7839 0888

* Mandatory fields