4 Bedroom Detached House
£415,000
Bearsden

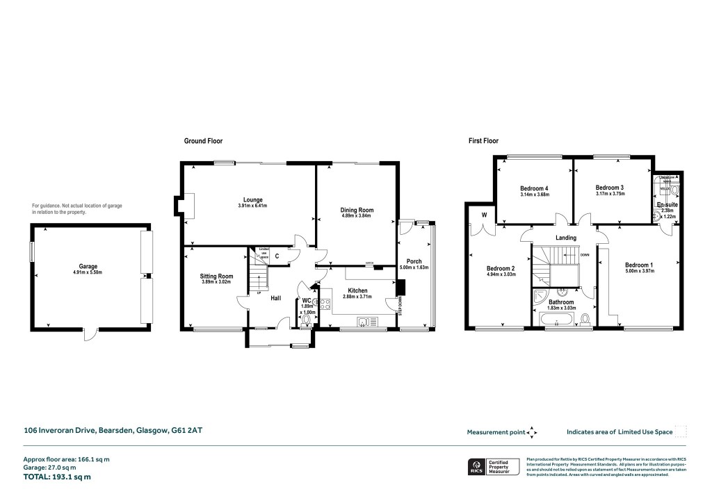
Floorplans For Bearsden
EPC Graph for Bearsden}

Description


• Detached villa four bedroomed villa by Taylor Homes • Occupying an attractive corner plot with established/incredibly private gardens • Seven principal apartments, floor space of circa 1,787 sq.ft • Superb location – Killermont Primary/Boclair Academy catchment • Off street parking, detached garage • Gas central heating, PVCu double glazing Located in Bearsden’s long sought after Boclair district, the property constructed by Taylor Homes in the 1960’s have proved enduringly popular owing to their generous proportions and adaptable accommodation. Here, No.106 Inveroran Drive occupies a particularly appealing corner plot with substantial garden grounds. Internally, the property offers a living arrangement of seven principal apartments (currently set up as four bedrooms/three public rooms) and will appeal to families looking for a property that can meet their evolving needs. Over the course of ownership, the property has been very well maintained indeed, with room for the successful bidding party to implement their own themes over time. A fantastic opportunity. Summary of Accommodation Our suite of HDR photographs, video, 360° matterport tour and floorplan provide ample material for desktop review, with a summary of the accommodation to be found as follows:- - Entrance vestibule through to reception hallway - Storage and cloakroom w.c - Spacious lounge with sliding door access to rear - Formal dining room - Sitting room - Contemporary fitted kitchen - Rear porch - Modern tiled four-piece bathroom and ensuite shower room - Four bedrooms Situation Apart from the excellent nearby schooling, Killermont Primary with Early Years Centre/New Boclair Academy building, the house is handy for the shops on Rannoch Drive and more so Sainsburys and Asda on Milngavie Road. Bearsden Cross and the excellent facilities to be found there are about a mile to the west. The nearest Railway Station is at Hillfoot where regular services connect you into Glasgow’s West End and City Centre. SAT NAV REF: G61 2AT EPC : BAND D COUNCIL TAX : BAND G TENURE : FREEHOLD
Rettie and Co

Rettie & Co

165 Milngavie Road
Bearsden
East Dunbartonshire
G61 3DY

+44 (0)141 943 3150

Reference: BXL180633

Request a viewing for this property

Simply fill out the form below or alternatively call us on 020 7839 0888

* Mandatory fields