3 Bedroom Terraced House
£320,000
Bearsden

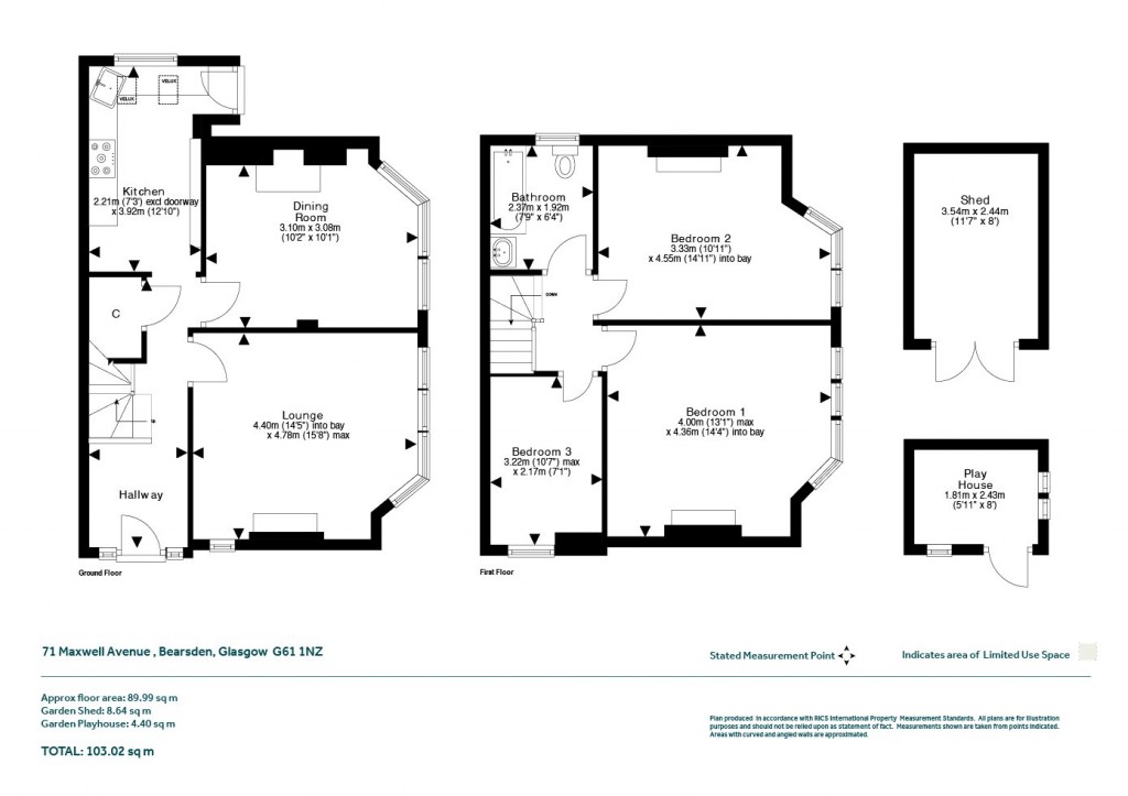
Floorplans For Bearsden
EPC Graph for Bearsden}

Description


• Three bedroomed ‘B’ listed end of terrace house • Forming part of the popular & historic Westerton Gardens Suburb • Fantastic garden space and off-street driveway parking • Beautifully presented, plenty traditional features • Westerton Primary and Boclair Academy catchment area A simply charming home dating from the Edwardian era (circa 1913), this three-bedroomed end of terrace villa offers a seamless marriage of space and period charm and will appeal to those looking for something with abundant character. One of the larger style terraced homes found within the Conservation Area of Westerton Village, Scotland's first and only true gardens suburb. Well-presented throughout, the property enjoys a particularly appealing position within the area, with quality garden space and the advantage of off-street driveway parking both really appealing features that are rare to these homes. Internally, our clients have, to great effect, leant into the traditional personality of the property, with a vibrant colour palette tastefully employed throughout. Our suite of HDR images, 360° immersive tour, HD video, and floor plan will allow for thorough desktop appraisal of the property, with a summary of the accommodation as follows: Summary of Accommodation - Reception hallway with staircase to first floor - Bay windowed lounge with log burning stove - Bay windowed dining room with feature fireplace - Country style kitchen with plenty units, worktops space and integrated appliances (courtesy door to rear garden) - Tiled three-piece family bathroom - Three bedrooms (two doubles and additional single room) Externally, the property features generous level garden space laid mainly to lawn/set over two principal tiers and with sections of stone paviours for outdoor furniture. Off street parking for up to two cars. Situation Westerton is set to the southerly fringe of Bearsden, just to the north of Anniesland, and is highly popular due in no small part to the railway station and the primary school. There are several enjoyable woodland walks on your doorstep. Also at Westerton is a small library and a very handy general store. Major shopping facilities can either be found in Bearsden (Asda, Sainsbury’s, Marks & Spencer’s Simply Food) or at Anniesland (Morrisons, Aldi or Marks & Spencer’s Simply Food). SAT NAV REF: G61 1NZ COUNCIL TAX : BAND E EPC : BAND TENURE : FREEHOLD

Reference: BXL160001

Request a viewing for this property

Simply fill out the form below or alternatively call us on 020 7839 0888

* Mandatory fields