Executive two double bedroom apartment - No onward chain
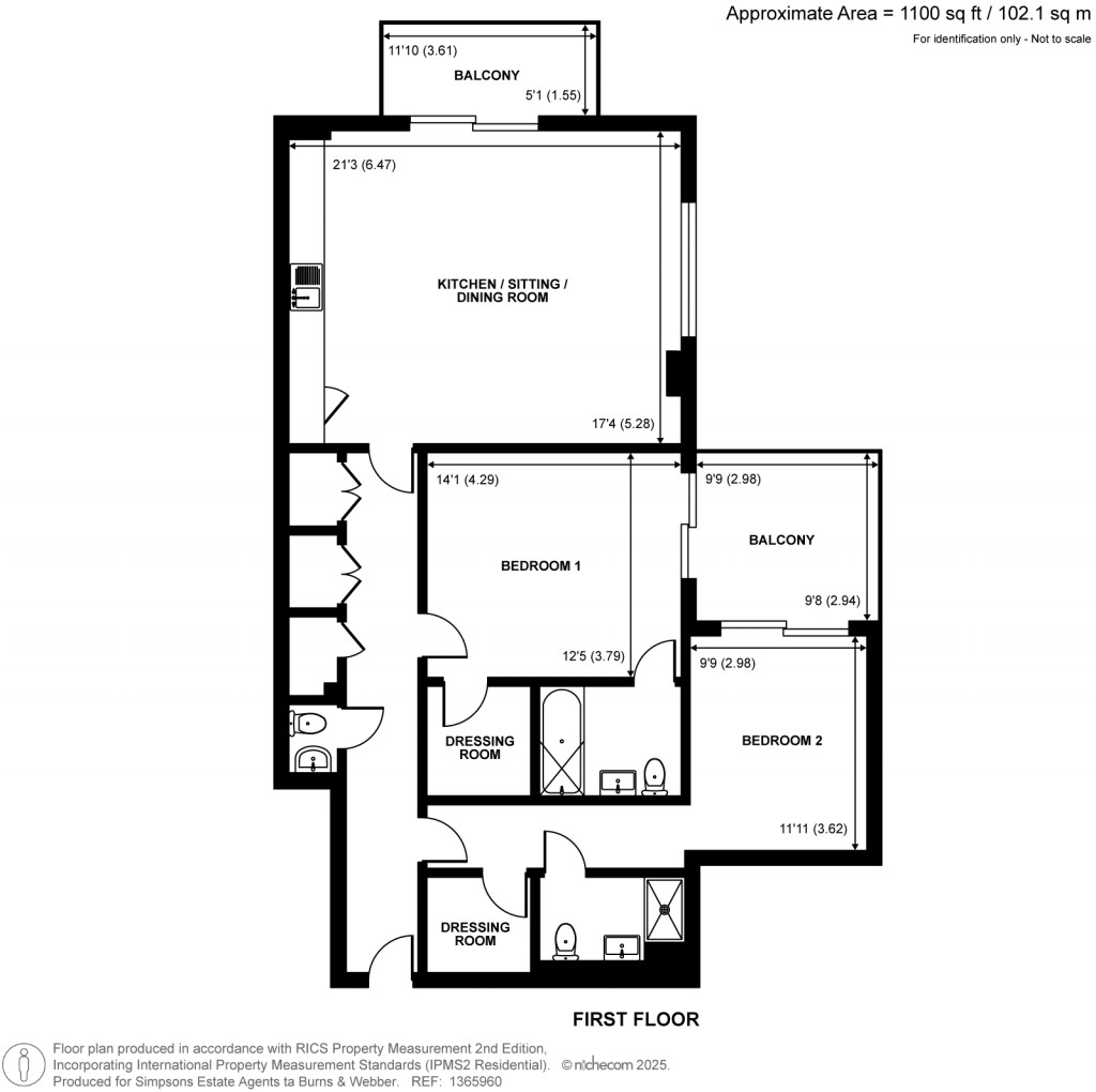
Large open-plan living/kitchen/dining area
Fully fitted kitchen with built in appliances and stone work surfaces.
Two well-proportioned double bedrooms both with luxury ensuites and walk in wardrobes.
Two balconies, one accessed from the lounge the other interlinking both bedrooms with excellent views
Underfloor heating throughout
Allocated parking and town centre location (circa 0.2 miles from the mainline station)
Council Tax Band: D
Tenure: Share of Freehold
A superb opportunity to purchase an executive two double bedroom apartment located in the heart of Farnham town centre. The Bridge was constructed by Hedge Hunter and is a development of 14 luxury apartments offering spacious, light modern living. This apartment is located on the first floor and has two balconies both overlooking Gostrey Meadow and the Cenotaph. Internal viewing is highly recommended.
Located a mere 0.2 miles from Farnham mainline station, this super apartment is located in one of Farnham's most sought after developments. The property is accessed via the communal entrance where you have the option to take the lift or stairs to the first floor. As you enter the apartment you have a long entrance hallway offering access to all of the accommodation. There is a large open-plan lounge/dining/living area with doors opening out to a balcony that enjoys beautiful views over Gostrey Meadow and the Cenotaph. The kitchen area has built-in appliances and stone worksurfaces. Both bedrooms are well-proportioned and offer built-in wardrobes and ensuites. There is another large interlinking balcony between the bedrooms. The apartment does offer plenty of storage as well as a separate utility area and WC. The property comes with one allocated space and is within easy distance to all of Farnham Town centre amenities.