5 Bedroom Terraced
£865,000
Lythwood, Bayston Hill, Shrewsbury

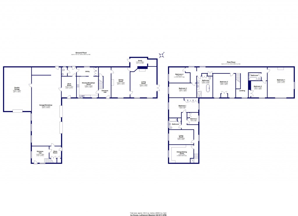
Floorplans For Lythwood, Bayston Hill, Shrewsbury Floorplans For Lythwood, Bayston Hill, Shrewsbury
EPC Graph for Lythwood, Bayston Hill, Shrewsbury

Description


Tranquil and private location on the outskirts of
Bayston Hill village, A number of excellent
schools just a short drive away, Rich in character
and charm throughout, Separate annexe which can be incorporated into the main house, Easy access to the A5/A49/M54, EPC: E, Freehold


Situation: Ivy House is set in a tranquil and private location on the outskirts of Bayston Hill village. A range of local amenities and train station can be found in the close-by Shrewsbury town centre. The property benefits from easy access to the A5, A49 and M54, and enjoys scenic walking
trails, particularly along Lyth Hill. There are a number of excellent schools, such as Shrewsbury School and Prestfelde Prep School, plus Meole Brace and Priory Secondary Schools, all a short drive away.

The property is an impressive Georgian residence, rich in character and charm throughout and featured in the Shrewsbury Museum as one of ten historally important homes in Shropshire. Ivy House offers a versatile and adaptable layout, and approached via a gated entrance leading to a sweeping gravel driveway, extending to the large main garage, adjacent to a second double garage located at the rear of the property.

A generous concrete yard also provides storage space for a motorhome / caravan. A large double garage offers perfect workshop space with power and a Belfast sink. Linked to the garage is an additional large store. There is scope for this space to be incorporated
into the living accommodation. In addition, there is a second double garage positioned to the rear of the property.

The gardens, primarily positioned at the front of the house, are a spectacular feature with beautifully maintained lawns, well-stocked herbaceous borders, and a plethora of specimen plants and trees. All set in approximately 0.62 acres.

The entrance hallway has a feeling of period charm featuring a quarry-tiled floor, with a staircase leading to the first floor and ceiling cornice. Off the hallway is the elegant Georgian dining room, with quarry tiled floor. Picture and Dado rails. And brick chimney breast, leading through to a study, perfect for home working and the sophisticated Drawing Room, featuring a picture rail and dado rail, the room includes a fireplace with a log-burning stove. Twin glazed French doors open onto a side terrace and the gardens.

The Breakfast kitchen with cupboards and drawers providing ample work surface space, including a one and a half bowl sink, features an integrated electric oven, along with a gas-fired AGA equipped with twin ovens and a double hot plate. There is a useful utility room providing plenty of space for white goods.

A rear hallway leads to a downstairs W/C and the large boot room.

Upstairs, Ivy House continues to impress with five bedrooms, four of which are double, the principal bedroom is a wonderfully spacious duel aspect room with a good amount of built in storage and a bathroom adjacent. In addition, there is a family bathroom 'his and hers' wash hand basins, central rolled top bath, large walk in shower cubicle.

The Granary Annexe offers additional accommodation, with its own parking area and includes a useful entrance hall on the ground floor, an attractive kitchen diner, a separate living room, two bedrooms, and a bathroom. Notably, the Annexe can easily be reintegrated into
the main house.

Services: Mains electricity, water and drainage. Gas central heating in main house, oil central heating in The Granary.

Council Tax Band: House: F ; The Granary: B

Local Authority: Shropshire Council (0345 678 9000)

Mobile Signal: EE Y three Y O2 Y Vodafone Y

Broadband Speed: Our research has indicated that Fast Broadband is available at this property. Please conduct your own research to ensure the speeds meet your requirements.

Flood Risk: Rivers, Sea and Surface water: very low risk.

Fixtures and Fittings: Whilst all attempts have been made to accurately describe the property in regard to fixtures and fittings, a comprehensive list will be made available by the seller's solicitors.

Wayleaves, Easements and Rights of Way: The property will be sold subject to and with the benefit of all wayleaves, easements and rights of way, whether mentioned in these particulars or not.

Directions: Directions, From Shrewsbury town centre proceed to the Dobbies bypass roundabout and continue south along the A49 in the direction of Bayston Hill and Church Stretton. Proceed into Bayston Hill, taking the right turn onto Lyth Hill Road, followed by the second right onto Lythwood Road. Proceed to the far end of Lythwood Road, taking the second left turning towards Lythwood Sports Complex. Proceed past the playing fields on the right, and continue along the unadopted lane where the property will soon be found behind a gated driveway.

what3words: ///shape.flag.snowAcreage:0.62
Balfours

Balfours

The Square
Shrewsbury
SY1 1LG

+44 (0)1743 353511

Reference: BLF-SBY240099

Request a viewing for this property

Simply fill out the form below or alternatively call us on 020 7839 0888

* Mandatory fields