2 Bedroom Duplex Maisonette
£400,000
Brentwood, Essex

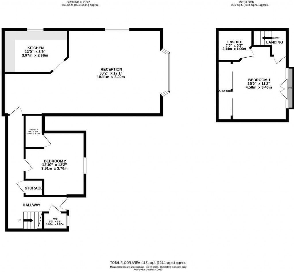
Floorplans For Brentwood, Essex
EPC Graph for Brentwood, Essex}

Description


Key Features

  • Exquisite duplex maisonette
  • Modern interiors
  • Bright and charming living spaces
  • Spacious open plan kitchen/lounge/dining
  • Bright and charming living space
  • Two good size bedrooms
  • Two off-street parking spaces and visitor parking
  • Sought-after location of Brentwood
  • 1.3 miles to Brentwood Mainline Station
  • Walking distance to excellent schooling
  • Council Tax Band: E
  • Tenure: Leasehold
Introducing this exquisite duplex maisonette boasting two bedrooms, perfect for those seeking a bright and charming living space. This affordable property offers a clean and luxurious interior, with a spacious open plan kitchen/dining/lounge area and a bedroom to the ground floor with an en-suite. To this floor there is also ample storage space and a WC. To the first floor you have another bedroom, with wardrobe space and another en-suite, as well as a Julienne Balcony. With ample space and well-lit rooms, this home exudes a welcoming atmosphere. The property also features two off-street parking spaces, adding to its appeal as well as dedicated visitors parking.

Situated down a quiet residential turning in a convenient location, this property is walking distance from Becket Keys and St. Helens Schools, whilst only being 1.3 miles to Brentwood Mainline Station with its links to London Liverpool Street (Elizabeth Line). Whether you're looking for a cosy retreat or a stylish abode, this duplex maisonette ticks all the boxes. Don't miss out on the opportunity to make this your new home sweet home. Contact us today to arrange a viewing and experience the charm of this delightful property. (Ref: BES120033)

Reference: BES120033

Request a viewing for this property

Simply fill out the form below or alternatively call us on 020 7839 0888

* Mandatory fields