3 Bedroom First Floor Flat
£235,000
Berwick-upon-Tweed, Northumberland

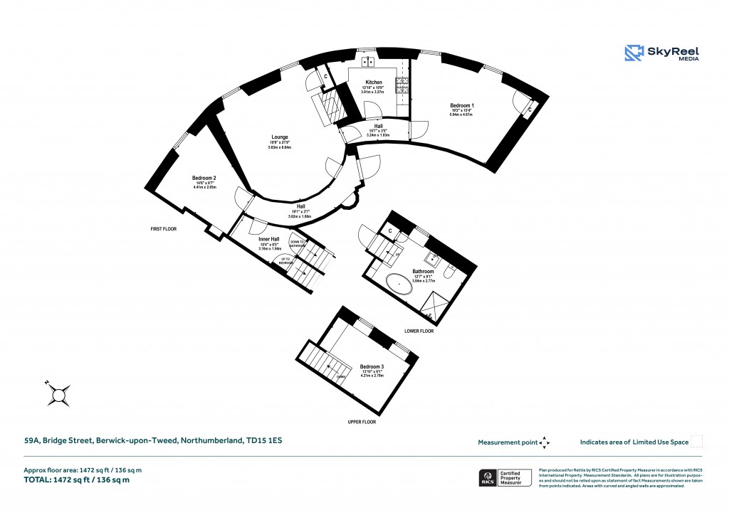
Floorplans For Berwick-upon-Tweed, Northumberland

Description


Set within one of Berwick-upon-Tweed’s most characterful historic streets, this beautifully presented three-bedroom first floor apartment occupies part of an impressive Grade II listed building on Bridge Street. Combining period charm with generous proportions, the property offers refined living in a highly sought-after central location. Accommodation Comprises: Inner Hall, Hallway, Lounge, Kitchen, Three Bedrooms, Bathroom. Distances: Berwick Railway Station 1 mile, Edinburgh 57 miles, Newcastle upon Tyne 63 miles (All distances are approximate). Tenure: Leasehold - 236 years remaining. Council Tax Band: A EPC: Exempt - grade 2 listed. Listing: Please be aware the property is Grade 2 listed and lies within a conservation area.

Reference: BER260005

Request a viewing for this property

Simply fill out the form below or alternatively call us on 020 7839 0888

* Mandatory fields