3 Bedroom Semi Detached House
£160,000
Milfield, Northumberland

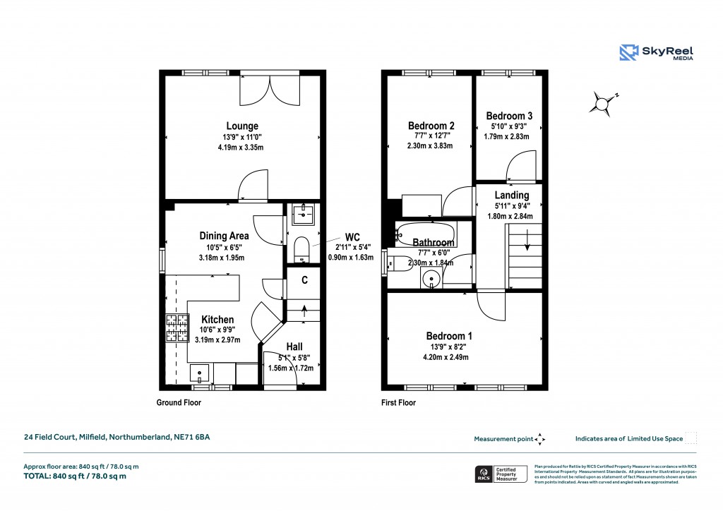
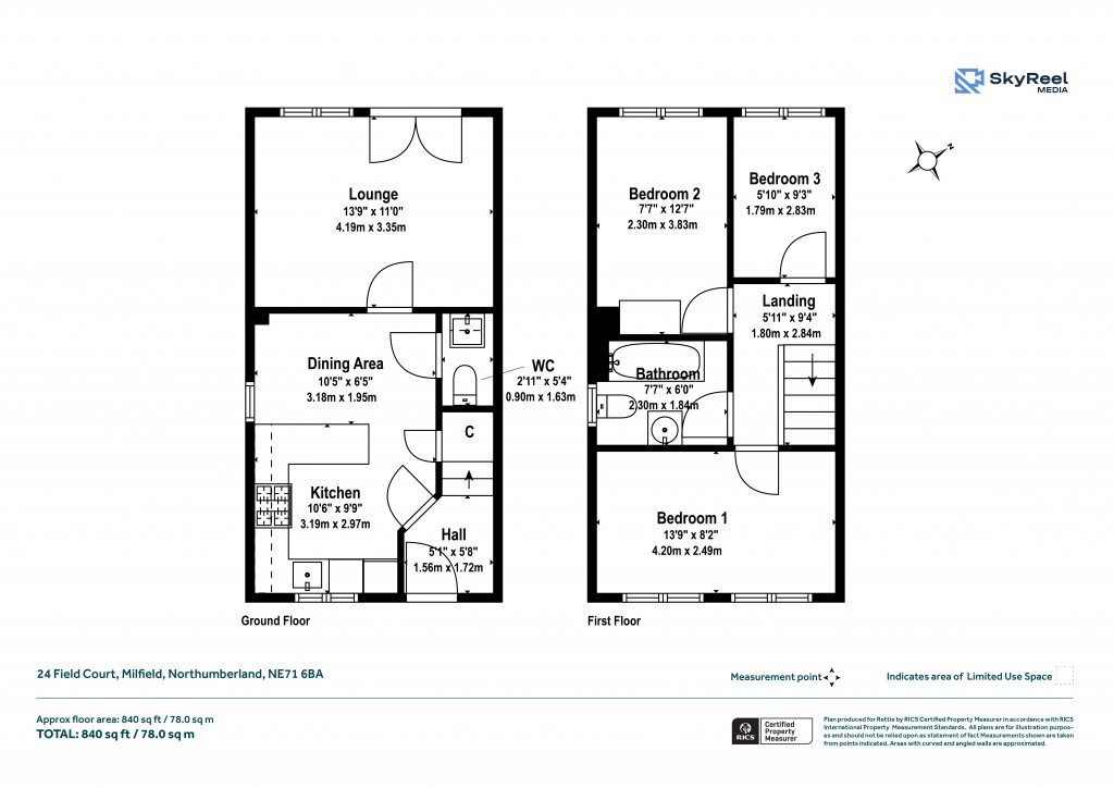
Floorplans For Milfield, Northumberland
EPC Graph for Milfield, Northumberland}

Description


A beautifully presented 3 bedroom semi-detached home in a quiet Milfield cul-de-sac, just minutes from Wooler, offering modern living, countryside views, a private garden and driveway. Accommodation Comprises: Ground Floor: Entrance Hall, Lounge, Dining Kitchen, Cloakroom. First Floor: Landing, Three Bedrooms, Family Bathroom. External: Front & Rear Garden, Private Driveway. Distances: Wooler 6 miles, Berwick Upon Tweed 14.5 miles, Coldstream 9 miles, Alnwick 25 miles, Kelso 16 miles, Newcastle Upon Tyne 52 miles, Edinburgh 57 miles. (all distances are approximate). Tenure: Freehold Services - Mains services. Double glazing. Gas central heating Council Tax - Band B Energy Efficiency - Rating C (73)

Reference: BER250237

Request a viewing for this property

Simply fill out the form below or alternatively call us on 020 7839 0888

* Mandatory fields