5 Bedroom Detached House
£425,000
Berwick-upon-Tweed, Northumberland

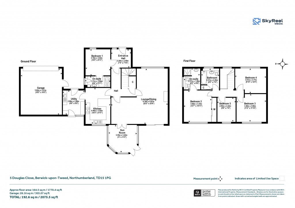
Floorplans For Berwick-upon-Tweed, Northumberland
EPC Graph for Berwick-upon-Tweed, Northumberland}

Description


Rarely available, this most impressive detached family home is positioned on a corner plot in a very sought-after residential area on the edge of the town. The house has been in the same family since being built in 1974 and offers spacious and well-presented accommodation over two floors, generous gardens and a double garage. Ideally situated for transport and amenities, there are regular bus services into the town centre and two supermarkets, shops and a coffee shop within easy walking distance and the train station is only a fifteen-minute walk away. Accommodation Comprises Ground Floor: Vestibule, Hall, Sitting Room, Dining Area, Conservatory, Kitchen-Breakfast Room, Utility Room, Double En-Suite Bedroom. First Floor: Landing, Master Bedroom (En-Suite Bathroom), Three Further Bedrooms, Family Bathroom. Outside: Generous Private Driveway, Off-Street Parking, Double Garage, Landscaped Garden Grounds. Distances: Berwick Railway Station 0.8 mile, Edinburgh 56 miles, Newcastle 65 miles. (All distances are approximate). Tenure: Freehold Listed: No EPC: C (69) Council Tax Band: D What3words: lived.tides.enjoy Services: Gas central heating, mains water, electric and drainage.

Reference: BER250191

Request a viewing for this property

Simply fill out the form below or alternatively call us on 020 7839 0888

* Mandatory fields