2 Bedroom Semi Detached House
£250,000
Low Greens, 59 Low Greens, Berwick-upon-Tweed

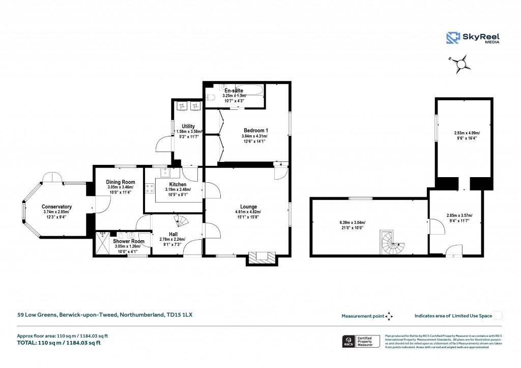
Floorplans For Low Greens, 59 Low Greens, Berwick-upon-Tweed

Description


A charming cottage in the sought-after area of Low Greens, just a short walk away from the railway station with off street parking. The cottage has a large garden, with lapsed planning consent under ref: 12/02679/full for the erection of a single storey dwelling house. The property offers tremendous potential and early viewing is advised. Accommodation comprises: Ground Floor: Hall, Sitting Room, Dining Room, Conservatory, Kitchen, Utility Room, Double En-Suite Bedroom, Shower Room/WC. First Floor: Three Attic Rooms. Outside: Private Off-Street Parking, Large Landscaped Garden, Brick Shed, Timber Shed, Green House. Distances: Berwick Railway Station 0.5 miles, Edinburgh 56 miles, Newcastle 65 miles (all distances are approximate). GENERAL REMARKS Satellite Navigation For those with the use of Satellite Navigation the postcode for this property is TD15 1LX What3words await.them.quite (please download the application “what3words” for the exact location) Tenure Freehold Fixtures and Fittings All fitted carpets and light fittings are included with the sale. Listing and Conservation Please be aware, Coble Cottage is not Listed, but it is in a conservation area. Services Mains water, drainage and electricity, gas central heating. Council Tax Band B Energy Efficiency Rating Band TBC

Reference: BER250164

Request a viewing for this property

Simply fill out the form below or alternatively call us on 020 7839 0888

* Mandatory fields