3 Bedroom Duplex Flat
£200,000
Spittal, Berwick Upon Tweed, Northumberland

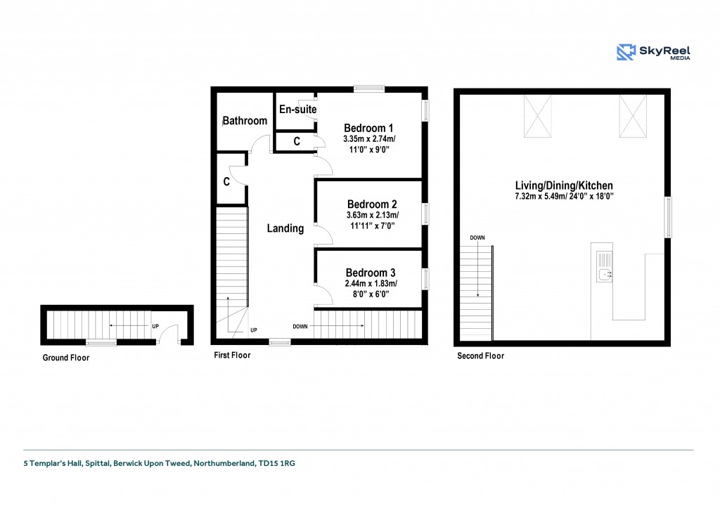
Floorplans For Spittal, Berwick Upon Tweed, Northumberland
EPC Graph for Spittal, Berwick Upon Tweed, Northumberland}

Description


A fantastic stone-built three bedroomed, two bathroom, period property located only a few yards from the beach and offering stunning sea views. The property is beautifully presented throughout, offered in turn-key condition and would make an ideal holiday home, holiday let or permanent residence. Accommodation Comprises: Ground floor: Entrance hall with stairs rising to the first floor. First floor: Hall, master bedroom with en-suite, two further bedrooms, bathroom. Second floor: Open-plan sitting-dining-kitchen with sea views. Outside: Unrestricted on-street parking and only a minute walk to the beach. Distances: Edinburgh 58 miles, Berwick Rail Station 2 miles, Newcastle 62 miles (All distances are approximate) Tenure: Leasehold - 999 Lease from 16/1/19. 993 years remaining, peppercorn ground rent. Listed: No EPC: C Council Tax Band: C Services: Mains water, electric, drainage and gas central heating.

Reference: BER250163

Request a viewing for this property

Simply fill out the form below or alternatively call us on 020 7839 0888

* Mandatory fields