3 Bedroom Semi Detached House
£150,000
Berwick-upon-Tweed, Northumberland

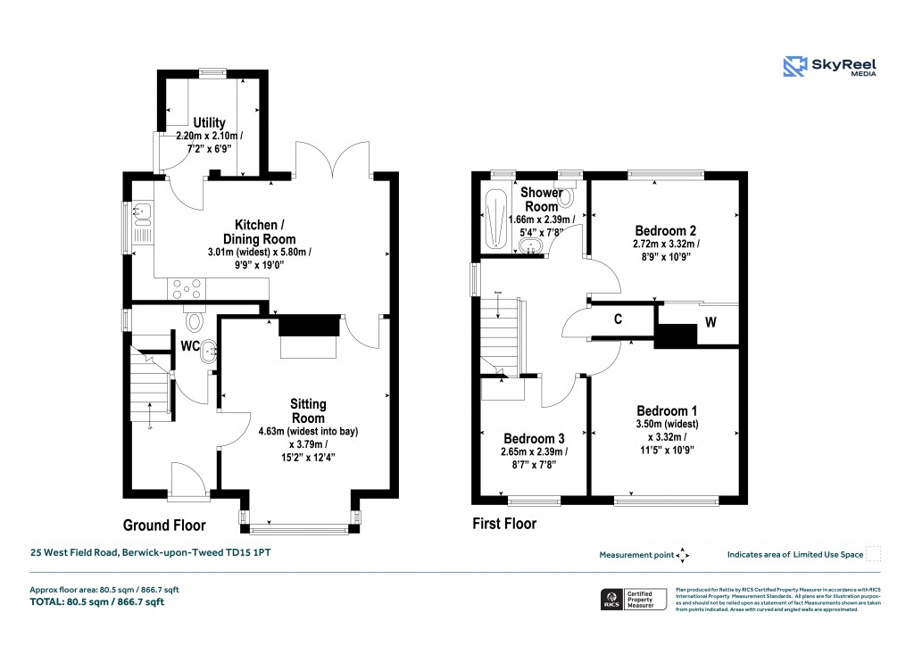
Floorplans For Berwick-upon-Tweed, Northumberland
EPC Graph for Berwick-upon-Tweed, Northumberland}

Description


CLOSING DATE SET: FRIDAY 7TH NOVEMBER AT 12NOON. A well-presented semi-detached family home occupying a generous corner plot in a peaceful and sought-after residential area, within easy walking distance to the train station and town centre. The house offers a contemporary dining-kitchen and bathroom and gardens to the front, side and rear. There is also the potential to extend into the loft as the neighbouring property has done to create further living accommodation. Accommodation Comprises: Ground Floor: Hall, Cloakroom, Sitting Room, Dining-Kitchen, Utility Room. First Floor: Landing, Two Double Bedrooms, Single Bedroom, Family Bathroom. Outside: Landscaped Gardens, Unrestricted On-Street Parking. Distances: Berwick Railway Station 0.5 mile, Edinburgh 56 miles, Newcastle 65 miles (all distances are approximate). Tenure: Freehold Listed: The property is not listed. EPC: C (69) Council Tax Band: A What3words: loose.prefer.bravo Services: Mains Water, Electricity, Drainage, Gas Central Heating.

Reference: BER250119

Request a viewing for this property

Simply fill out the form below or alternatively call us on 020 7839 0888

* Mandatory fields