5 Bedroom Detached House
£459,950
Sunnyside, Duns, Berwickshire

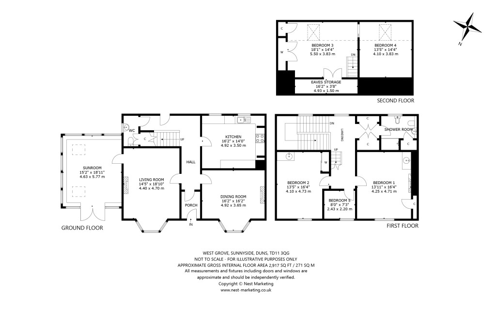
Floorplans For Sunnyside, Duns, Berwickshire
EPC Graph for Sunnyside, Duns, Berwickshire}

Description


NO CHAIN West Grove is a handsome detached, 5-bedroom house of about 271 sq. metres situated in the popular Berwickshire town of Duns. The property offers comfortable family accommodation and benefits from stunning garden grounds, an enclosed paddock and easy access to the surrounding beautiful Berwickshire countryside and within walking distance of the town. The property also benefits from planning permission for the erection of a single dwelling house and new vehicular access. Further details of this can be found on the Scottish borders planning portal using ref: 20/00488/PPP Accommodation comprises: Ground Floor: Entrance vestibule, reception hall, living room, dining room, sunroom, kitchen, cloakroom/WC. First Floor: Landing, bedroom 1, bedroom 2, bedroom 3, shower room. Second Floor: Bedroom 4, Bedroom 5. Outside: Generous Garden Grounds, Paddock, Detached Garage. In all circa 0.9 acres. Distances: Berwick-upon-Tweed 15 miles, Edinburgh 40 miles, Newcastle 65 miles. Viewings: Strictly by appointment only with Rettie & Co in Berwick upon Tweed, 01289 305 158. Tenure: Freehold EPC: F (28) Council Tax Band: F

Reference: BER240050

Request a viewing for this property

Simply fill out the form below or alternatively call us on 020 7839 0888

* Mandatory fields