2 Bedroom Terraced House
£424,950
Warley, Brentwood

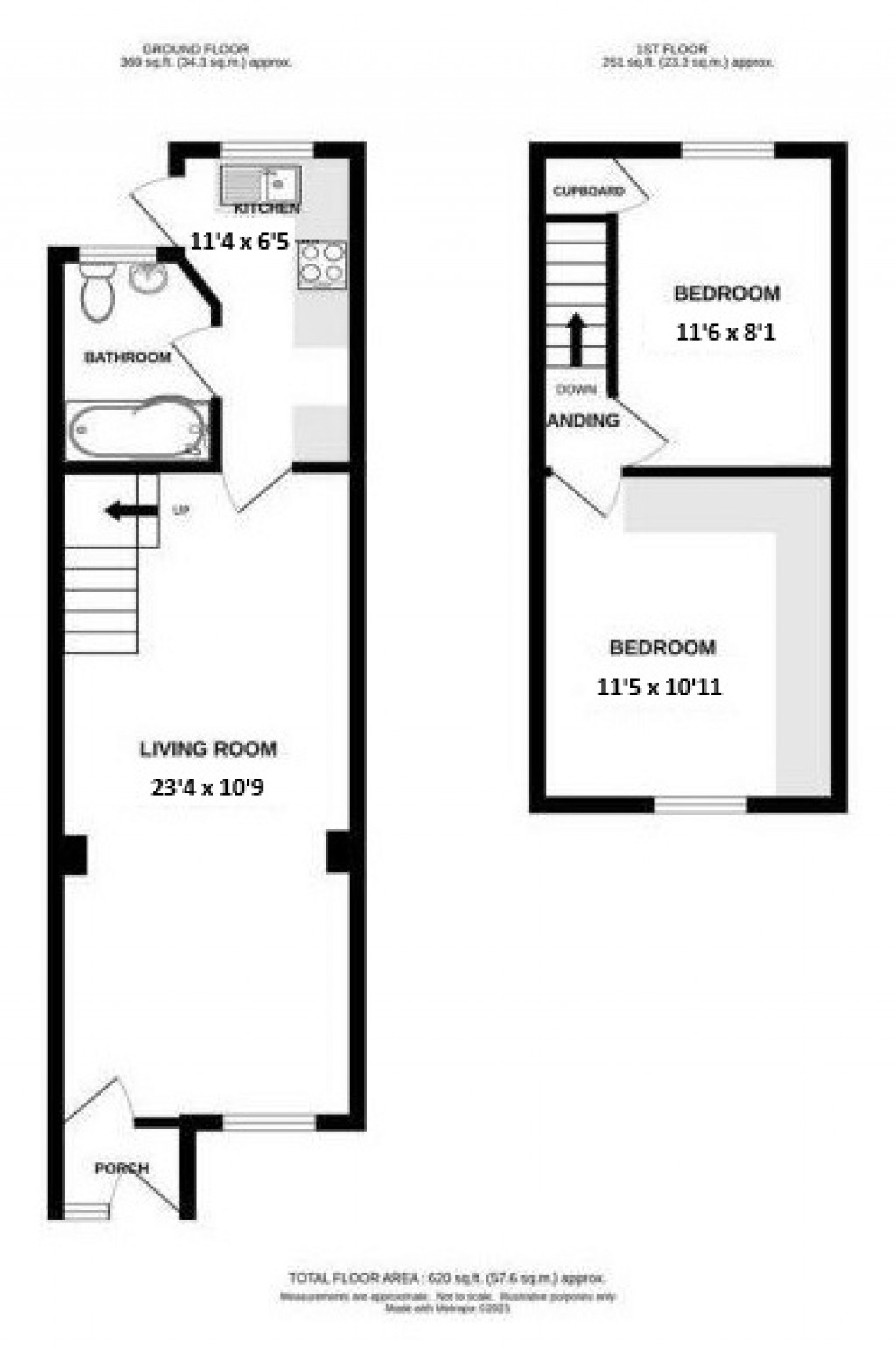
Floorplans For Warley, Brentwood
EPC Graph for Warley, Brentwood}

Description


Key Features

  • Attractive period style brick-built cottage
  • Within 0.4 miles to Brentwood Railway Station
  • Within 0.7 mile to Brentwood High Street
  • Good access to Warley Country Park
  • Close to King Georges Playing Fields
  • Easy Access to Holly Trees Primary School
  • Ideal first time or investment purchase
  • No onward chain
  • Council Tax Band: D
  • Tenure: Freehold
This period style brick-built cottage is situated just 0.4 miles from Brentwood’s Mainline Railway Station which provides a regular service to London Liverpool Street as well as the Elizabeth Line. Brentwood’s vibrant High Street which offers a comprehensive range of shopping, leisure and recreational facilities is within 0.7 mile and also provides a Marks and Spencer’s and a Sainsbury’s Supermarket. The property also provides good access to local parks and country walks including Warley Country Park and King Georges Playing Fields and also close to Holly Trees Primary School.

As you enter the property through the entrance porch you are greeted by a generous size lounge/diner with stairs rising to the first floor. The kitchen is to the back of the property and has been fitted with a range of base and eye level cream units, integrated oven and hobs and space for other appliances. Off the kitchen is where you will find the bathroom which has been fitted with a white suite, including P shaped bath, wall mounted shower, vanity sink and WC. Upstairs there are two double bedrooms with the main bedroom being fitted with wardrobes. Outside the front of the property offers a paved driveway for one vehicle and a good size rear garden with lawned area and small patio to the rear. This property is an ideal purchase for first time buyers or investors and has the added benefit of being offered with no onward chain. EPC C (Ref: ADS230044)

Reference: ADS230044

Request a viewing for this property

Simply fill out the form below or alternatively call us on 020 7839 0888

* Mandatory fields