5 Bedroom Semi Detached House
£495,000
Dunmow, Essex

Floorplans For Dunmow, Essex Floorplans For Dunmow, Essex
EPC Graph for Dunmow, Essex}

Description


Key Features

  • No Onward Chain
  • Great potential
  • Kitchen/Diner
  • Lounge
  • Study
  • Four/Five Bedrooms
  • Large Garden
  • Council Tax Band: C
  • Tenure: Freehold
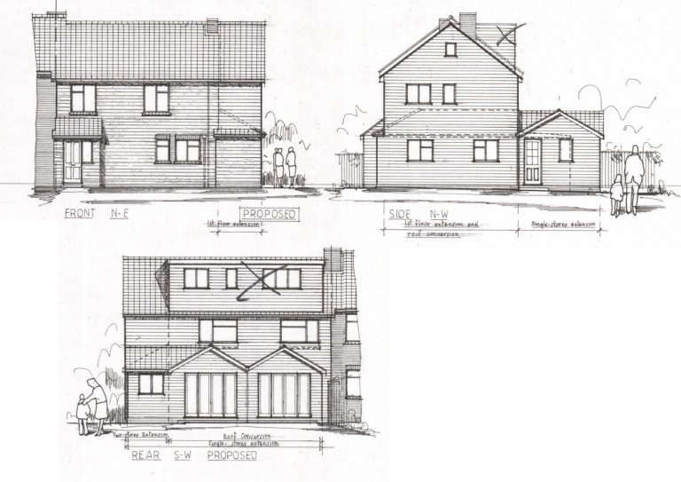
Beresfords are pleased to offer this much improved and extended four/five bedroom family home within walking distance of the town centre. The property is positioned on a generous plot with an abundance of off-street parking.

Accommodation comprises of kitchen/diner, lounge, shower room and conservatory on the ground floor, three bedrooms with a family bathroom on the first floor and a large primary suite on the second floor (or two smaller bedrooms).

Further benefits to the property include a large rear garden and rear garaging/outbuilding. Additional planning permission has been granted for an additional rear single story extension which would add extra living and entertaining space.

Reference: ADS220003

Request a viewing for this property

Simply fill out the form below or alternatively call us on 020 7839 0888

* Mandatory fields