3 Bedroom Link Detached
£415,000
James Street, Selsey, PO20

Floorplans For James Street, Selsey, PO20

Description


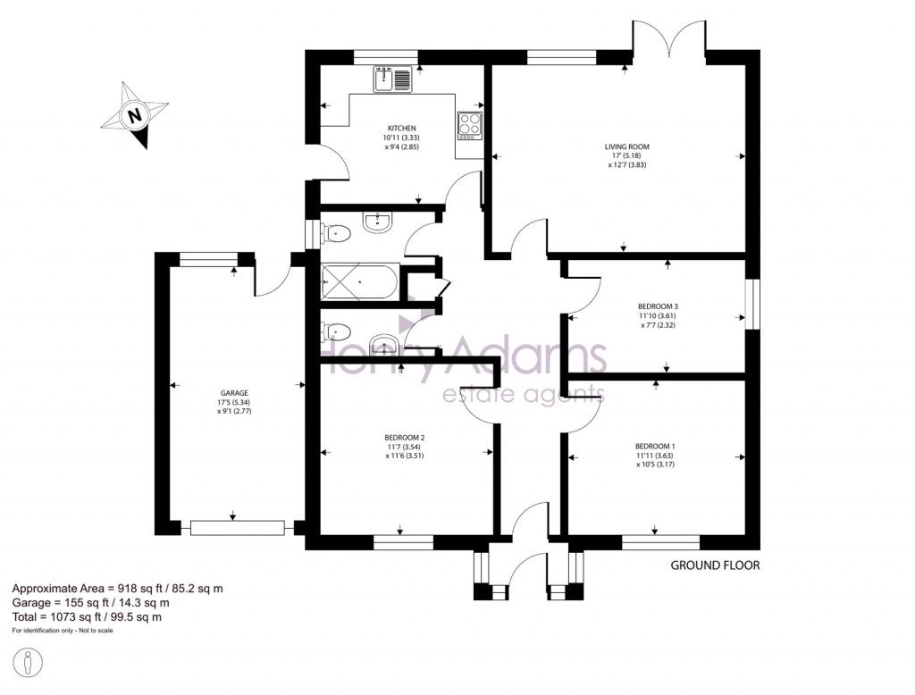
Situated on a desirable road to the east of Selsey, this detached bungalow offers an excellent opportunity for those seeking a coastal lifestyle, with the beach located approximately 200 metres away at the end of the road. The property provides well-proportioned accommodation, including three bedrooms, a family bathroom and an additional cloakroom for convenience. The southerly facing living room enjoys direct access to the garden, creating a bright and welcoming space for relaxation or entertaining. The kitchen and living areas are well presented, although some modernisation to fixtures and fittings would allow a new owner to place their own stamp on the home, and the advantage of being offered with no onward chain.

Three sections of garden can be found on three sides of the bungalow, offering a variety of spaces for outdoor enjoyment. To the front, mature hedging provides privacy, with a lawned area and a wooden gate leading to the side garden. The side garden is mainly laid to lawn and features a section of shingle, a greenhouse and a further gate providing access to the rear section. Adjacent to the kitchen is an area of hardstanding, ideal for storage or additional seating, while a paved patio area next to the living room offers a perfect spot for al fresco dining. The remainder of the gardens are predominantly laid to lawn. The driveway leads to the garage, which is equipped with light, power and a personal door into the garden, ensuring both practicality and security for vehicles and storage alike.

Reference: 9b09ff8e-c168-4b95-9653-03cdb5cd5a31

Request a viewing for this property

Simply fill out the form below or alternatively call us on 020 7839 0888

* Mandatory fields