3 Bedroom House
£575,000
Alfold Bars, Loxwood, RH14

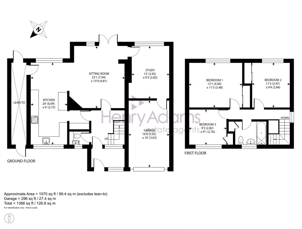
Floorplans For Alfold Bars, Loxwood, RH14

Description


This well presented three bedroom detached house offers an ideal opportunity for family living in a desirable semi-rural position, just a short drive from the amenities and transport links of Billingshurst.

The property welcomes you with a spacious entrance hall featuring elegant parquet flooring, setting the tone for the rest of the home. The modern kitchen is finished with contemporary blue units, complemented by quartz and wood worktops, and is equipped with a double oven, induction hob, integrated dishwasher, and an American fridge freezer, making it perfect for both every-day living and entertaining with ample space for a dining table. The generous sitting room is a comfortable retreat, enhanced by an open fire and French doors, creating a light and inviting atmosphere. A second reception room offers flexibility as a study, play room, or additional living space, depending on your family's needs. Practical features include a separate utility room and a ground floor cloakroom, ensuring convenience for busy households.

Upstairs, there are three well proportioned bedrooms, each benefiting from either a fitted wardrobe or cupboard, and a family bathroom that serves the first floor. The property also provides a single garage, driveway parking for several vehicles, and an EV charger (ideal for electric vehicle owners). With its mature plot and east facing enclosed garden with generous patio area which is ideal for al-fresco dining, the house is situated close to picturesque countryside walks, offering the perfect blend of rural tranquillity and accessibility. Available with no forward chain, this attractive home presents a rare opportunity to enjoy comfortable and versatile accommodation in a sought after location.

Reference: 9a55ea48-08c3-49b9-b52c-6d572e3688e0

Request a viewing for this property

Simply fill out the form below or alternatively call us on 020 7839 0888

* Mandatory fields