3 Bedroom House
£675,000
Chapel Road, Barns Green, RH13

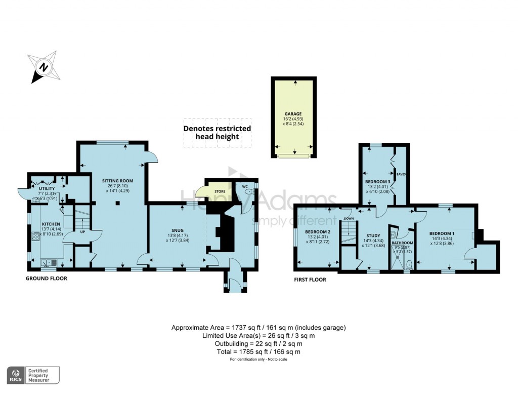
Floorplans For Chapel Road, Barns Green, RH13

Description


Guide price - £675,000 - £695,000

An outstanding and unique beautifully presented, Grade II listed 16th Century, three-bedroom two reception room detached cottage built in the 1500s, greatly improved by the current owners and retaining a wealth of character, situated in the heart of Barns Green Village.

Offering living and bedroom space arranged over two floors this property is ideally located in the popular village of Barns Green with excellent sports recreation, local junior school, amateur dramatic facilities access to nearby Horsham town centre, and superb countryside walks.

To the ground floor, a reception porch welcomes you and leads into the reception hallway, and there is also a convenient WC.

There is a separate open plan sitting room which enjoys views over the rear gardens and has a direct access to the rear garden terrace.

This is adjacent to the snug which centres around a stunning Inglenook fireplace with freestanding multi fuel wood burner. There is an abundance of character due to the beamed ceilings, exposed wooden wall beams and quarry stone tile flooring.

The kitchen has a modern finish whilst retaining classic style with Corian worksurfaces running over light base units. There is a selection of integrated appliances including dishwasher, two fridges, hob and AEG oven.

There is the convenience of a separate utility room/boot room with a butler sink and an area providing storage shelves and drying facility.

To the first floor the main bedroom enjoys views to the front and rear of the property providing a light and airy space with walk-in wardrobe/cupboard. There are two further bedrooms to the first floor, a study area and a well-equipped bathroom with walk-in shower, low-level WC and wash hand basin.

The property is approached via a gravel driveway leading to a detached garage which has a up and over door. The front garden has beautifully landscaped borders with mature shrubs, planting and further areas of lawn plus Horsham stone pathway. The rear gardens are also laid to lawn, there is a pond feature and a selection of beds and borders with mature trees and planting. There are further patio and terrace areas ideal for outdoor dining and several seating areas ideal for taking in the sunshine whilst enjoying the atmosphere of the superb gardens and village life.

Reference: 9a55ea1d-9873-4d25-8cdb-8d8427a94c46

Request a viewing for this property

Simply fill out the form below or alternatively call us on 020 7839 0888

* Mandatory fields