5 Bedroom House
£600,000
Bankside, Chichester, PO20

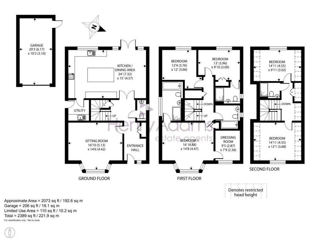
Floorplans For Bankside, Chichester, PO20

Description


Situated on the popular Shopwyke Lakes development on the outskirts of Chichester and enjoying an enviable lakeside position on a no through road, lies this impressive detached house.

The spacious and well-proportioned accommodation is arranged over three floors with a sitting room, large modern kitchen/dining room, utility room and cloakroom on the ground floor. There is access to the driveway from the utility room and garden from the kitchen/diner. The principal suite can be found on the first floor which boasts a large dressing room and en-suite facility with bathroom and separate shower cubicle. A second double bedroom with en-suite facility, further bedroom and bathroom/WC can also be found on the first floor. On the top floor there are two further double bedrooms and a shower room/WC. Delightful views of the lake and beyond towards the South Downs are offered form the top floor.

Outside, to the side of the property is a driveway which provides tandem parking and leads to the garage. In the rear garden, a patio area with pergola adjoins the property with raised flower beds which gives way to lawn and a decked area.

Estate Charge - TBC

Chichester District Council - 24/25 Tax Band G £3,702.72

Proceed north east out of Chichester along A285 (St Pancras) On reaching the roundabout with the A27, take the third exit (A27 westbound) keeping in the left hand slip road and turn into Westen Lane. At the end turn right into Longacres Way and first left into Kingfisher Gardens. Bankside is first turning on the left. what3words - pleaser.episode.trek

Henry Adams

Henry Adams

Rowan House
Baffins Lane
Chichester
West Sussex
PO19 1UA

+44 (0)1243 533377

Reference: 9a55e7f1-3103-4d91-baac-33f8be199076

Request a viewing for this property

Simply fill out the form below or alternatively call us on 020 7839 0888

* Mandatory fields