3 Bedroom Bungalow
£375,000
Chichester Way, Selsey, PO20

Floorplans For Chichester Way, Selsey, PO20

Description


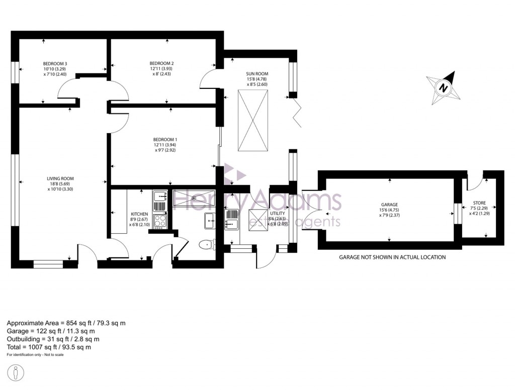
This beautifully presented three bedroom semi-detached bungalow, a mere 200m walk to the sea, offers versatile and spacious living accommodation, ideal for families and downsizers alike.

The property features a bright and airy lounge that flows seamlessly into a modern fitted kitchen. The bungalow benefits further from a practical utility room (offering additional storage and laundry facilities). Three well-proportioned bedrooms provide ample space for rest and storage, while a contemporary shower room adds to the appeal. A standout feature is the generous sun room, complete with stylish bi-fold doors (perfect for entertaining or relaxing throughout the year).

Externally, the property benefits from a garden that is approximately 50ft in length. Features of the garden include patio areas, a lawn, and gravel borders. Off road parking for multiple vehicles ensures convenience for residents and visitors. There is also a garage with an adjoining garden store, providing excellent storage solutions.

Immaculately maintained throughout, this home combines comfort with functionality, making it a superb opportunity for those seeking a move-in ready property in a sought-after location just a stones throw from the coast.

Reference: 9a55e78c-9ca1-4acf-acbc-96cf68ed6b26

Request a viewing for this property

Simply fill out the form below or alternatively call us on 020 7839 0888

* Mandatory fields