1 Bedroom Flat
£200,000
Manor Road, Selsey, PO20

Floorplans For Manor Road, Selsey, PO20

Description


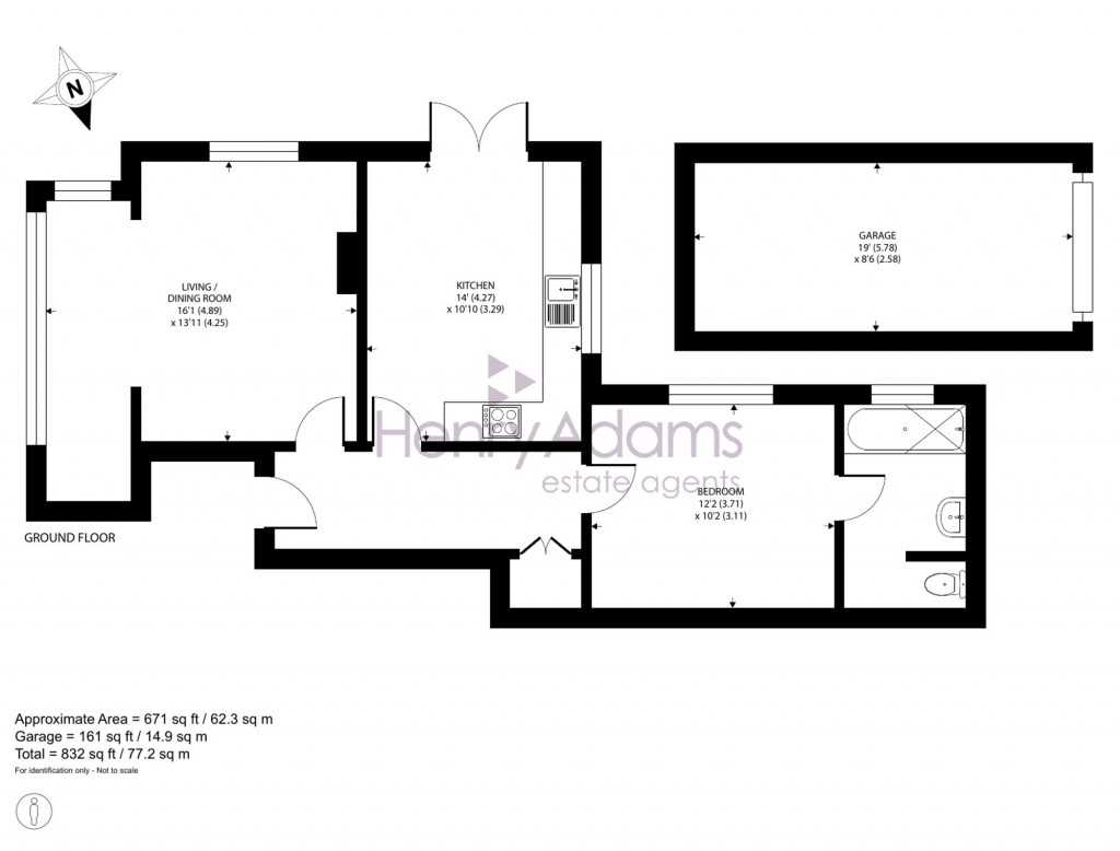
This spacious ground floor flat forms part of a period building which dates back to the 1860's and we believe in it's history has at one time been used as 'The Old Bays' boys school and offers a blend of character features and modern convenience.

Stepping inside, you are greeted by an entrance hall that leads the principal rooms which comprise of a living room, kitchen breakfast room and double bedroom. The living room measures 16ft by 14ft and features high ceilings, dual aspect sash windows which flood the room with light, feature fireplace & deep skirtings. The kitchen/breakfast room is well-appointed with space for a dining table, integrated dishwasher and door to the communal gardens making it perfect for both every-day meals and entertaining guests.

The bathroom is en-suite the double bedroom a features a bath with shower over, w/c and wash hand basin. Residents benefit from the convenience of allocated parking and a garage, providing secure storage and peace of mind. The property also enjoys use of communal gardens on 3 sides on the building. Located to the North of Selsey with local shops, bus route and the beach in close proximity. A rarity for flats, the property not only offers off road parking for 1 car but it is also offered with a garage. Offered to the market with no onward chain, the property in our view would make an ideal opportunity for both first-time buyers and investors.

Reference: 9a55e77c-211a-484d-b231-532b42f476de

Request a viewing for this property

Simply fill out the form below or alternatively call us on 020 7839 0888

* Mandatory fields